EasyManua.ls Logo

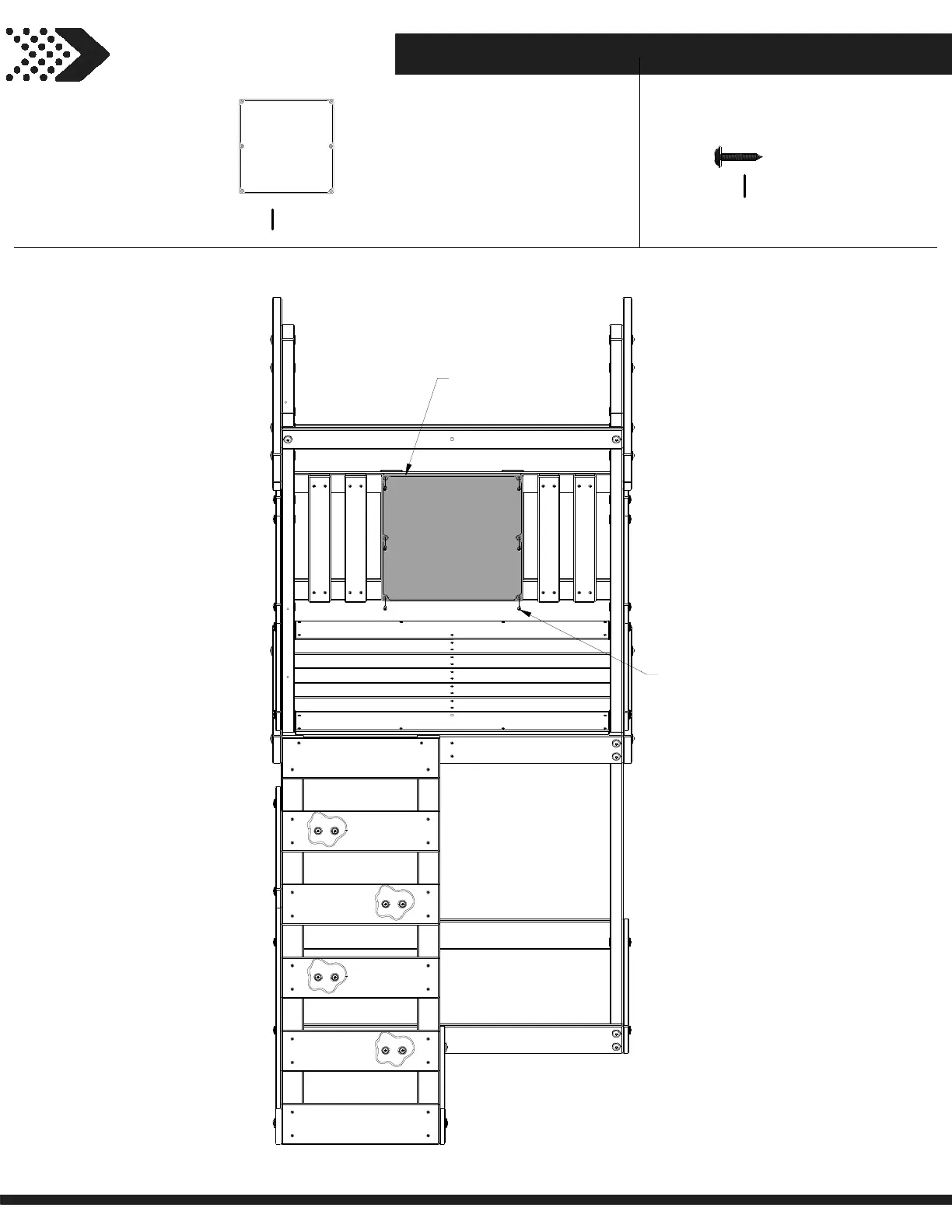
Backyard Discovery Bay Pointe - Fort Assembly - Chalk Board; Step 12: Chalk Board Installation

Backyard Discovery Bay Pointe
43 pages
Print Icon
To Next Page IconTo Next Page
To Next Page IconTo Next Page
To Previous Page IconTo Previous Page
To Previous Page IconTo Previous Page
Loading...
FORT ASSEMBLY
STEP 12
392
(x6)
SCREW - 3/4"
323
(x1)
CHALK BOARD
SCREW PWH BLK
8x3/4
(6)
H100392
CHALK BOARD
(1)
A6P00323
31

Related product manuals