EasyManua.ls Logo

Backyard Discovery Bay Pointe - Fort Assembly - Picket Installation; Step 11: Picket Attachment

Backyard Discovery Bay Pointe
43 pages
Print Icon
To Next Page IconTo Next Page
To Next Page IconTo Next Page
To Previous Page IconTo Previous Page
To Previous Page IconTo Previous Page
Loading...
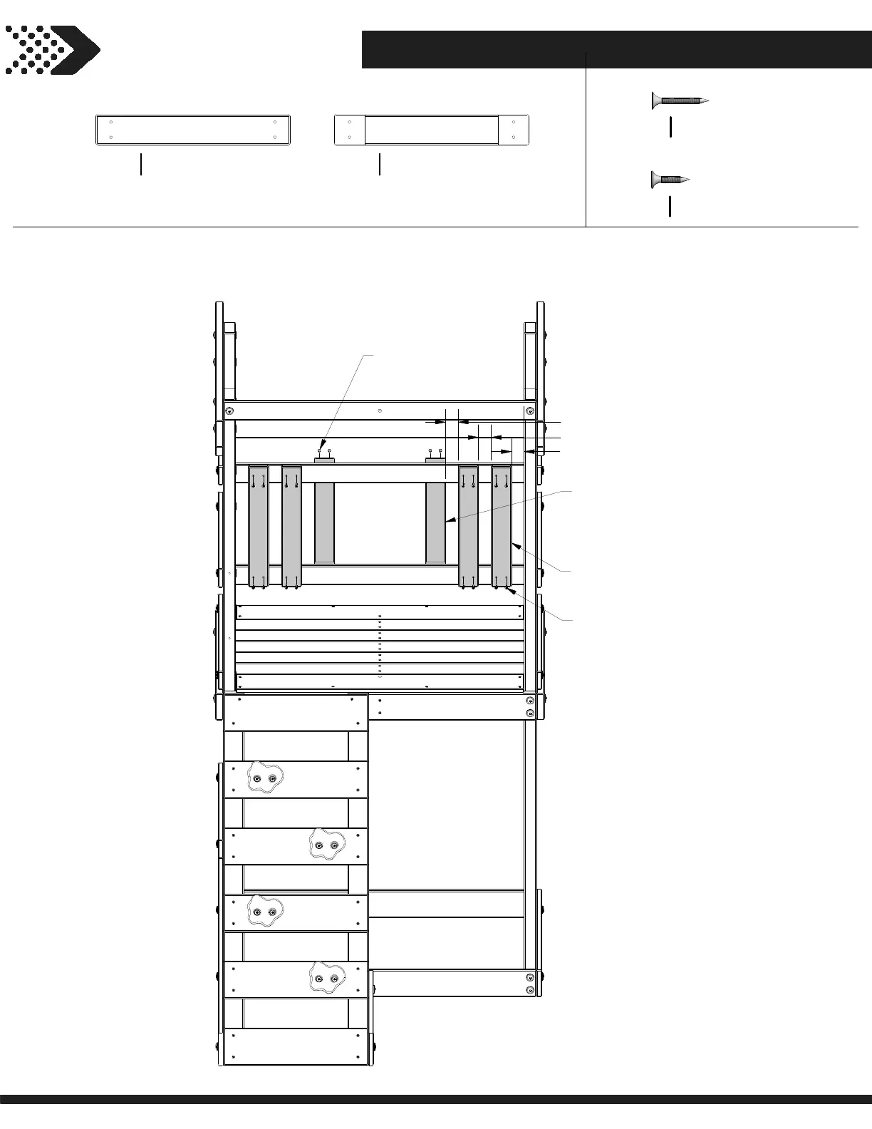
FORT ASSEMBLY
STEP 11
SCREW PFH
8x3/4
(8)
H100121
SCREW PFH
8x1 1/8
(16)
H100088
PICKET - W4L13282
1"x2 3/8"x15 1/8" (24x60x385)
J2
(2)
PICKET - W4L13281
5/8"x2 3/8"x15 1/8" (16x60x385)
N6
(4)
1 1/2"
1 1/2"
1 1/2"
121
(x8)
SCREW - 8x3/4"
088
(x16)
SCREW - 1 1/8"
N6
(x4)
J2
(x2)
30

Related product manuals