EasyManua.ls Logo

Bakbar E92 - Page 2

Default Icon
2 pages
Print Icon
To Previous Page IconTo Previous Page
To Previous Page IconTo Previous Page
Loading...
CLEANING
After use the plate should be scrubbed with a brush detergent and water, and the grease drawer
emptied. To remove accumulated carbon, use a scraper and fine grit griddle brick. Occasionally
bleach plate with vinegar when cold.
Note: Do not use griddle brick on chrome plated griddles.
THIS APPLIANCE MUST NOT BE CLEANED WITH A WATER JET.
SERVICING: DISCONNECT POWER SUPPLY BEFORE SERVICING.
Remove grease drawer and turn unit upside down. Remove panel marked service access. Remove
4 nuts holding the base panel.
THERMOSTAT - Remove thermostat wiring, knob and mounting nut. Lift the control assembly over
the front of the unit and withdraw thermostat through cutout in the base panel. Remove element
clamps and insulation. Replace thermostat and position bulb under insulation strip. Refit insulation,
clamps, base panel and cover panel.
ELEMENTS - Remove element wiring, lift control panel assembly over the front of the unit and
remove element clamps. Replace element, wiring, insulation, clamps base panel and cover panel.
SPARES
Spare parts are listed here. For parts not listed, please include model and serial number with a
description of the part when ordering.
DESCRIPTION MODEL E92
Element 220-240V 10280
Thermostat 11987
Knob °C 15563
Knob °F 14097
Pilot Light 13528
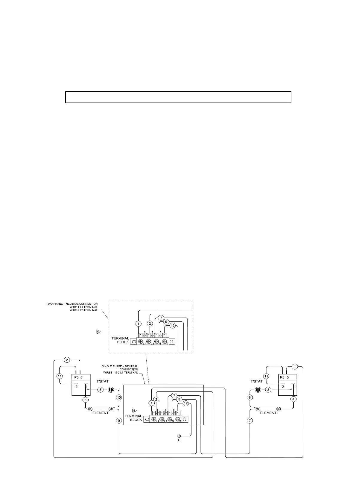
CIRCUIT DIAGRAM
NOTE: For 2 Phase, connect RH Thermostat to terminal marked L2.
F14017-9