EasyManua.ls Logo

Balboa Wavezone3NE - Unit Dimensions; System Specifications; Safety Warnings and Instructions

Balboa Wavezone3NE
7 pages
Print Icon
To Next Page IconTo Next Page
To Next Page IconTo Next Page
To Previous Page IconTo Previous Page
To Previous Page IconTo Previous Page
Loading...
Rev20200511
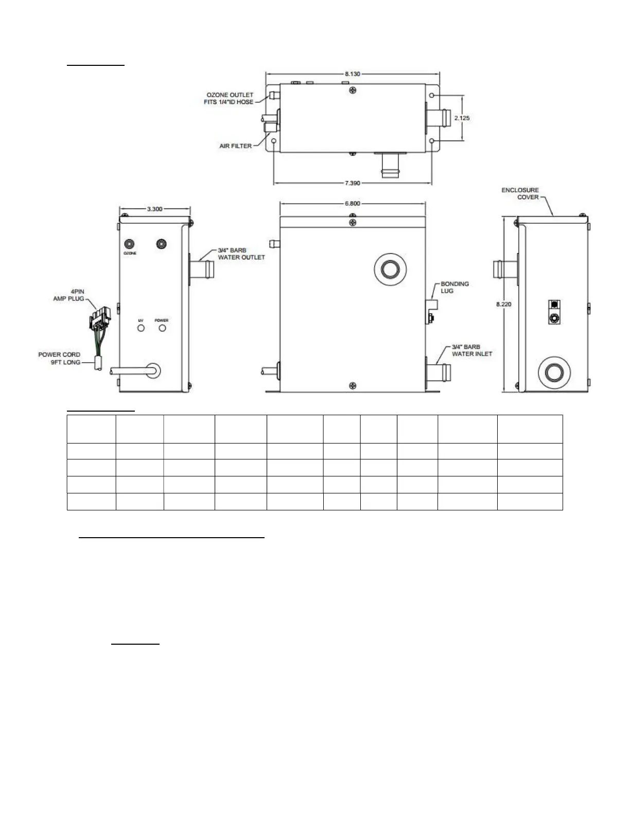
II. Dimensions:
III. Specifications:
BWG
PART
NUMBER
SYSTEM
VOLTAGE
LAMP
WATTAGE
RATED
AMPERAGE
SYSTEM
FREQUENCY
FLOW
RATE
QTY
OZONE
CELL
OZONE
OUTPUT
(0.8LPM)
CONNECTION
SIZE
APPROVAL
AGENCIES
59326 230V 7W 0.5A 50/60Hz 6 GPM 1 50 mg/h 3/4” BARB UL/cUL/CE/RCM
59327 230V 7W 0.5A 50/60Hz 6 GPM 1
100
mg/h
3/4” BARB UL/cUL/CE/RCM
59328 230V 7W 0.9A 50/60Hz 6 GPM 2
150
mg/h
3/4” BARB UL/cUL/CE/RCM
59329 230V 7W 0.9A 50/60Hz 6 GPM 2
200
mg/h
3/4” BARB UL/cUL/CE/RCM
IV. Important Warnings & Safety Instructions:
1. This unit is designed for use in spas only. It is not designed for use in potable drinking water. Misuse of this product
may be harmful to your health and the environment.
2. This unit to be installed by spa manufacturers only.
3. This unit is not intended for end user installations.
4. This unit is not to be used by persons (including children) with reduced physical, sensory or mental capabilities, or
lack of experience and knowledge, unless they have been given supervision or instruction concerning use of the
appliance by a person responsible for their safety.
5. Children being supervised not to play with the appliance.
6. This unit contains a UV-C lamp.
7. WARNING: Do not operate the UV-C lamp when it is removed from the unit enclosure. Do not operate if this unit is
obviously damaged.
8. Unintended use of the unit or damage to the housing may result in the escape of dangerous UV-C radiation. UV-C
radiation may, even in little doses, cause harm to the eyes and skin.
9. This unit must be installed completely underskirt of spas only.
10. This unit must be mounted securely to frame structure of the spas.
11. Spa water to be circulated from the spa through the unit with a pump & flexible hoses.
12. Maximum flow rate to be 6 GPM.
13. Maximum operating pressure at inlet is 20 pound/square inch = 137,895 pascals
14. See product label for appropriate electrical ratings.
15. This unit is to be supplied through a residual current device (RCD) having a rated residual operating current not
exceeding 30 mA.

Related product manuals