EasyManua.ls Logo

baltur LC3 - Page 48

baltur LC3
Print Icon
To Next Page IconTo Next Page
To Next Page IconTo Next Page
To Previous Page IconTo Previous Page
To Previous Page IconTo Previous Page
Loading...
14 / 16
0006160005_201502
ESPAÑOL
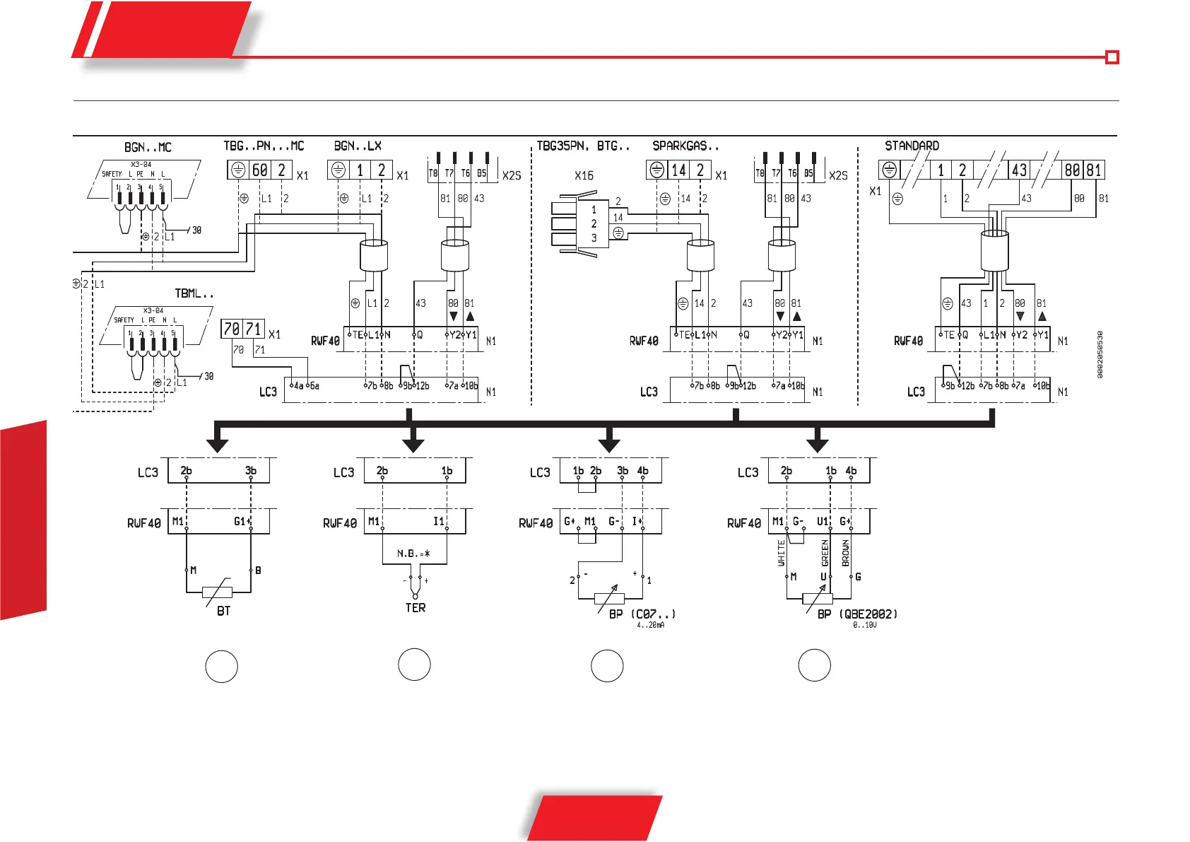
ESQUEMA ELÉCTRICO DE CONEXIÓN LC3 Y RWF40
A
B
C
D

Related product manuals