EasyManua.ls Logo

BAPI Stat 3 - Termination

BAPI Stat 3
6 pages
Print Icon
To Next Page IconTo Next Page
To Next Page IconTo Next Page
To Previous Page IconTo Previous Page
To Previous Page IconTo Previous Page
Loading...
Installation & Operating Instructions
“BAPI-Stat 3” Room Sensor
Building Automation Products, Inc., 750 North Royal Avenue, Gays Mills, WI 54631 USA
Tel:+1-608-735-4800 • Fax+1-608-735-4804 • E-mail:sales@bapihvac.com • Web:www.bapihvac.com
Specications subject to change without notice.
rev. 01/30/14
24694_ins_BS3
3 of 6
Termination
Table 1: TerminationTable
* [CH3] and [CH4] are referenced to [GND] if (CG) is selected at time of order. [CH3] and [CH4] are referenced to each other if (DF) is selected at time of order.
** S1-4, Position (CG) connects [Temp-] terminal to the [GND] terminal internally. The (DF) position makes the [TEMP -] terminal oating. (See Fig.10)
*** This is the current output of the solid state sensor and must be congured as S1-4 set to (DF) to allow the 592 or 334 sensor to operate.
^ The reed contact to override [CH4] can be set up for (CG) which shorts the [CH4] output to [GND] or (DF) shorting the output terminals [CH3/CH4].
^^ The E-POT controls the output resistance setpoint and during override, the E-POT controls the resistance to <100 ohms for 3-5 seconds.
^^^ A reed dry contact across the sensor [TEMP+/-] is congured at time of order as a (-61) option.
~ The [TEMP] terminals are used for an external 10K-2 thermistor connection if the [EXT option] is selected. (wire=25’ max)
Input Power
Terminal
Name
GND Pwr- & Sig- --------------
Sensor Power Connection---------
Sig- Sig- * **, ^ ** ***
V+ DC or AC --------------
Sensor Power Connection---------
CH1 CG X X X Sig+ mA +
CH2 CG X X X Sig+ mA+
CH3 CG/DF* per order X X ^^E-POT Sig+ ^^*<100KΩ *E-POT
CH4 CG/DF* per order X X
^^E-POT/^N.O. Sig+
^^*<100KΩ *E-POT/^N.O.
TEMP+ Sensor ^^^N.O ~ ~ N.O. Sensor V+
TEMP- CG/DF, S1-4** Sensor ^^^N.O. ~ ~ **N.O. Sensor ***V-
Supply
Power
Internal
Grounding
CG=Com. GND
DF=Isolated
Passive
RTD or
Thermistor
Sensor
592/334
Solid
State
Sensor
Temperature
Output
Override
Output
Voltage
Output
Current
Output
Resistive
Output
Signal Override
Contact
Temperature
Setpoint
Output
Humidity
Setpoint
Output
Humidity
Output
Output Variable (See your unit label for your conguration) Output Signal (See your unit label for your conguration)
See Table 1
for terminal
description
Factory
setup switch
Occupied/
un-occupied
BAPI-Man
power
(see Table 2,
Fig 5 & 6)
BAPI recommends using twisted pair of at least 22 AWG. Larger gauge wire may be required for long runs. All wiring
must comply with the National Electric Code (NEC) and local codes. Do NOT run this device’s wiring in the same conduit
as AC power wiring of NEC class 1, NEC class 2, NEC class 3 or with wiring used to supply highly inductive loads such
as motors, contactors and relays. BAPI’s tests show that uctuating and inaccurate signal levels are possible when AC
power wiring is present in the same conduit as the signal lines.
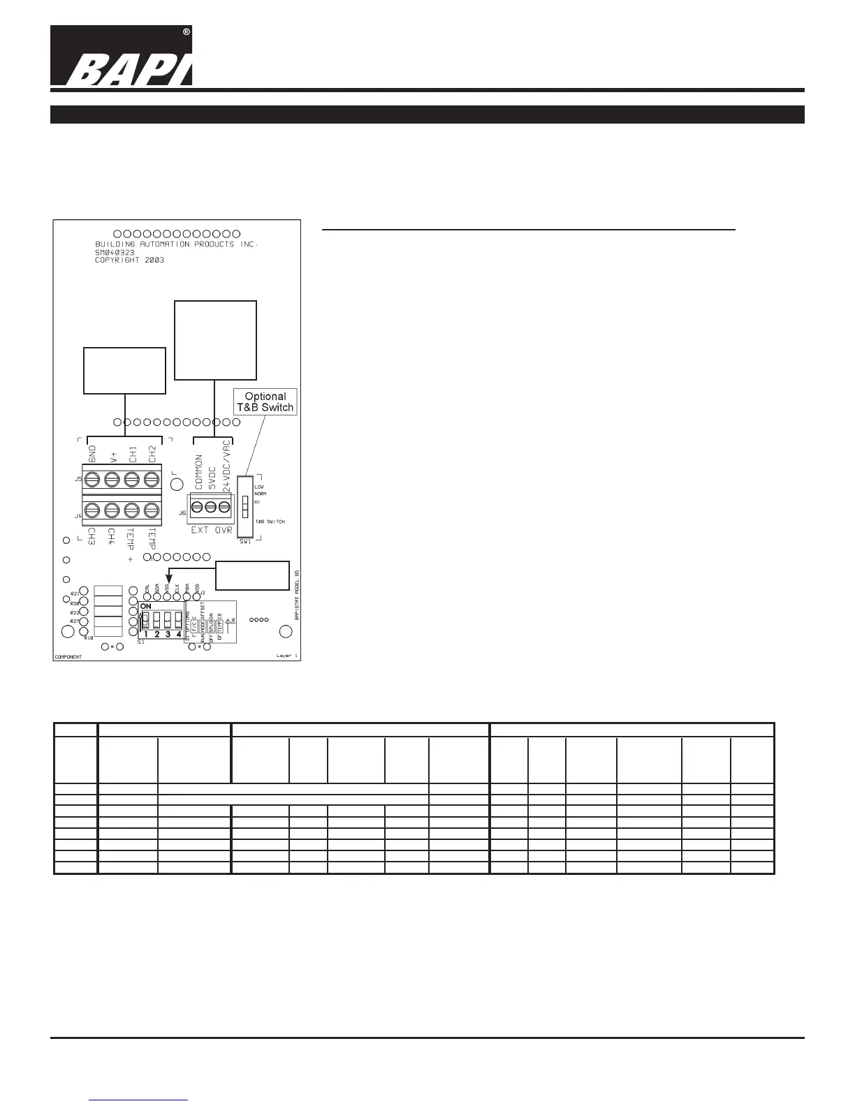
Fig. 4: BAPI-Stat Circuit Board
Terminal Notes: (Related to table 1), [ ] = Terminal designation
1. Only one variable and output type per channel. [CH3] and [CH4] can be
overridden.
2. The [GND] terminal is always the reference for [V+], [CH1] and [CH2]
terminals.
3. The temperature output range is limited to between 32º to 158ºF
(0º to 70ºC).
4. Humidity setpoint range is limited between 0 to 100% RH.
5. The override is available on [CH3], [CH4] and [TEMP+/TEMP-] only.
6. Voltage outputs are limited to between 0 to 10 VDC and are only
referenced to [GND].
7. Current outputs are limited to between 0 to 20 mA and are only refer-
enced to [GND].
8. Resistive E-POT outputs are limited to a 1K, 10K, 50K or 100KW linier
POT, ±30%.
9. Resistive sensor [TEMP+/TEMP-] outputs may be any BAPI passive or
solid state sensor.
10. When using a 592/334 sensor, [TEMP+] is the supply (5 to 30 VDC)
[TEMP-] is the current output to the analog input @ 1µA/ºC and requires
S1-4 to be set for (DF). Reversal of the power will damage the sensor.
11. The Test and Balance option (-TB) cannot be used with the 592/334 sen-
sor.
12. If the BAPI-Stat has the external sensor option (-EXT), then it must be a
10K-2 thermistor purchased separately. The external sensor is wired to
the temp + and temp - terminals. A humidity signal or passive sensor are
not allowed in this conguration.