EasyManua.ls Logo

Bard MEGA-TEC W120A - Page 72

Default Icon
159 pages
Print Icon
To Next Page IconTo Next Page
To Next Page IconTo Next Page
To Previous Page IconTo Previous Page
To Previous Page IconTo Previous Page
Loading...
Manual 2100-705B
Page 10 of 43
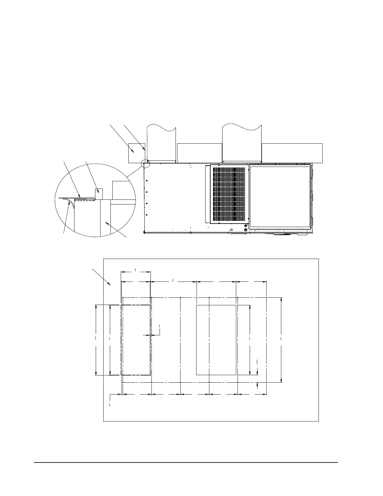
FIGURE 5
Mounting Instructions
1
4
"
3
"*43
8
*16
1
2
"
DUCT
FLANGES AND UNDER TOP FLASHING
AT TIME OF INSTALLATION.
RETURN AIR
NOTE:
PLACED BEHIND THE SIDE MOUNTING
TOP
FROM COMBUSTIBLE
ENTIRE LENGTH OF TOP.
OPENING
SUPPLY AIR
WALL STRUCTURE
MATERIALS
AIR DUCT IS REQUIRED
Right Side View
RAIN FLASHING
CAULKING ALONG
SEAL WITH BEAD OF
0.250" CLEARANCE ON ALL
FOUR SIDES OF SUPPLY
IT IS RECOMMENDED THAT A
BEAD OF SILICONE CAULKING BE
FOAM AIR SEAL
MIS-3946
Wall Opening and Hole Location View
RETURN OPENING
SUPPLY OPENING
WALL
* INCLUDES 0.25" CLEARANCE TO COMBUSTIBLE MATERIALS
52
1
16"
" 4
"
11
16
7
"
16"
42
8
7
22"
25
8
7
" 42
8
4
"
16"
17"
16"
16"
16"
7
8
"

Table of Contents

Related product manuals