EasyManua.ls Logo

Barton RCL-4500 - Charging Station Installation Guide

Default Icon
36 pages
Print Icon
To Next Page IconTo Next Page
To Next Page IconTo Next Page
To Previous Page IconTo Previous Page
To Previous Page IconTo Previous Page
Loading...
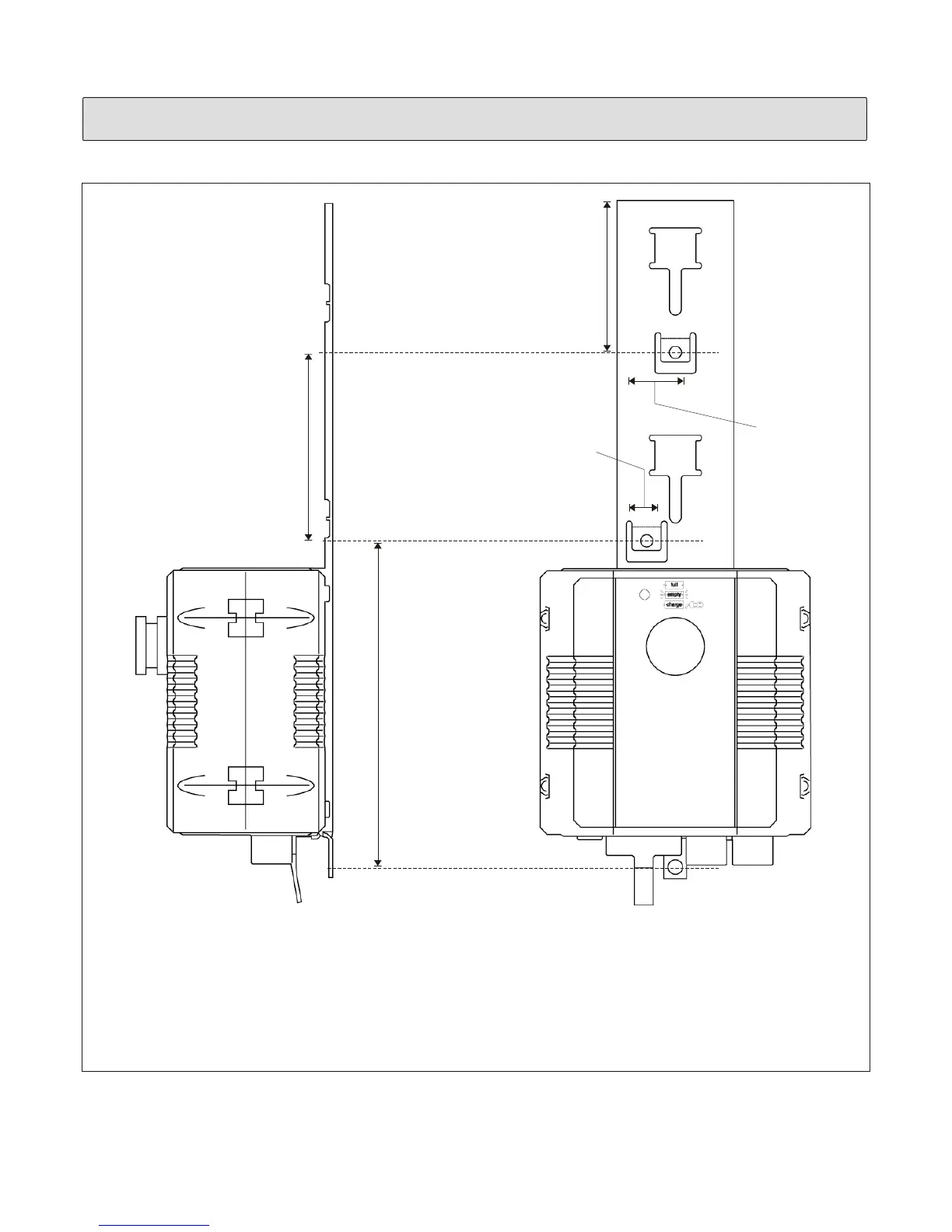
INSTALLING THE CHARGING STATION (400-157)
6 3/8”
(162 mm)
13/16”
(21 mm)
4 3/8”
(111 mm)
2 13/16”
(72 mm)
The above schematic shows the location of all of the mounting holes.
The wall mounted charging station should be fastened to the wall using 1/4” screws
with the appropriate wall anchors (will vary depending on your facility’s wall structure).
1 1/4”
(32 mm)
21

Related product manuals