EasyManua.ls Logo

Baruffaldi TOEM 120 - Page 5

Default Icon
21 pages
Print Icon
To Next Page IconTo Next Page
To Next Page IconTo Next Page
To Previous Page IconTo Previous Page
To Previous Page IconTo Previous Page
Loading...
Pagina N°.
Page Nr.
Edizione
Edition
S.p.A
11-93
B
702
F
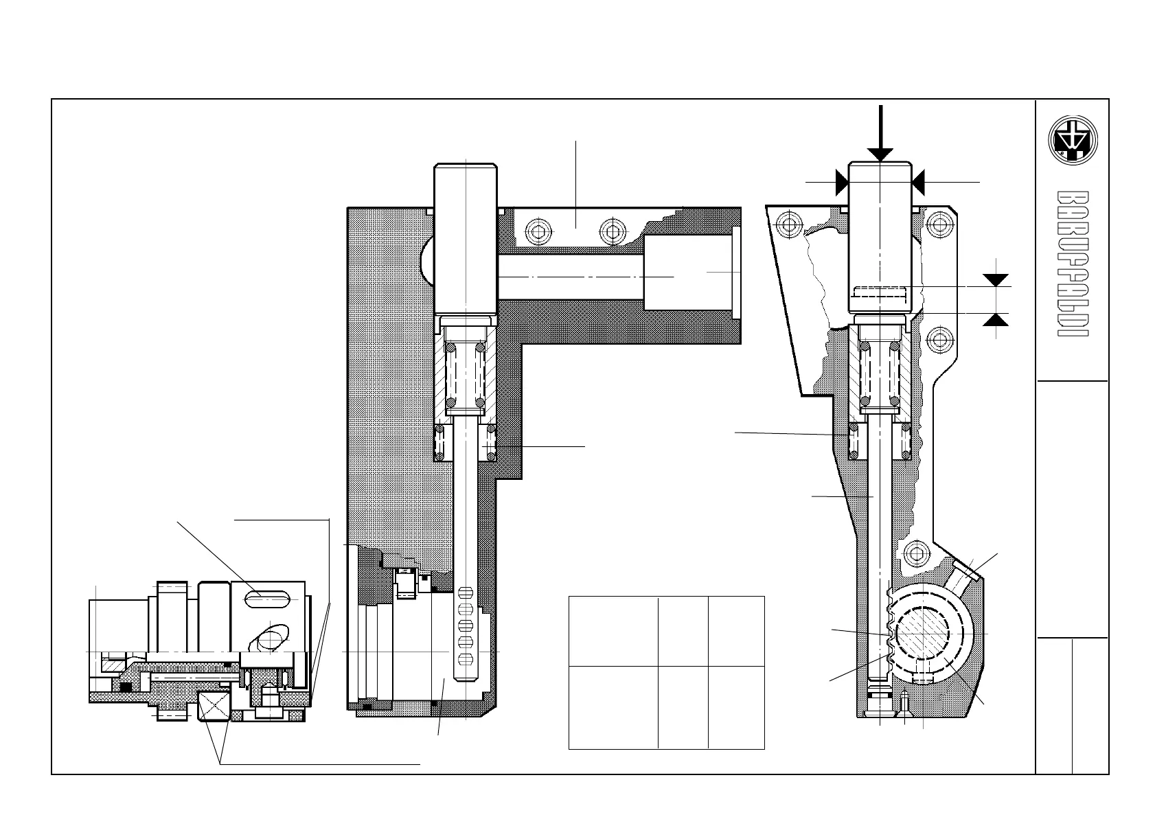
Surfaces on contact
GROUP ( I )
Turret
size
TOEM 120
TOEM 160
TOEM 200
TOEM 250
C
(mm)
V
Assembly group ( I ) before
inserting in support ( S )
S
D
Press action
Z
706
21
B
(mm)
711
L
24
24
24
24
3,5
3,5
4
4
Extremity (E)
clutch (708)
and
extremity (E)
gear (712)
on line
Slot ( A ) for
locking pino
(on line with
hole F)
TURRET DISASSEMBLY
(Related to the toolholders
rotation)
C

Related product manuals