EasyManua.ls Logo

Baumatic BHG112SS - Page 44

Baumatic BHG112SS
Print Icon
To Next Page IconTo Next Page
To Next Page IconTo Next Page
To Previous Page IconTo Previous Page
To Previous Page IconTo Previous Page
Loading...
44 45
DE
I
nstallation
Dieses Gerät ist mit einer Vorrichtung zur Beseitigung
der Verbrennungsgase nicht angeschlossen. Installation
und Anschluß müssen laut den geltenden Vorschriften
ausgefürt werden. Gerät nur in ausreichend belüfteten
Räumen und nach den gesetzlichen Vorschriften aufstellen.
Die Menge der benötigten Verbrennungsluft darf nicht unter
2,0 m
3
/h pro installierte kW-Leistungseinheit liegen. Siehe
Heizleistungstabelle.
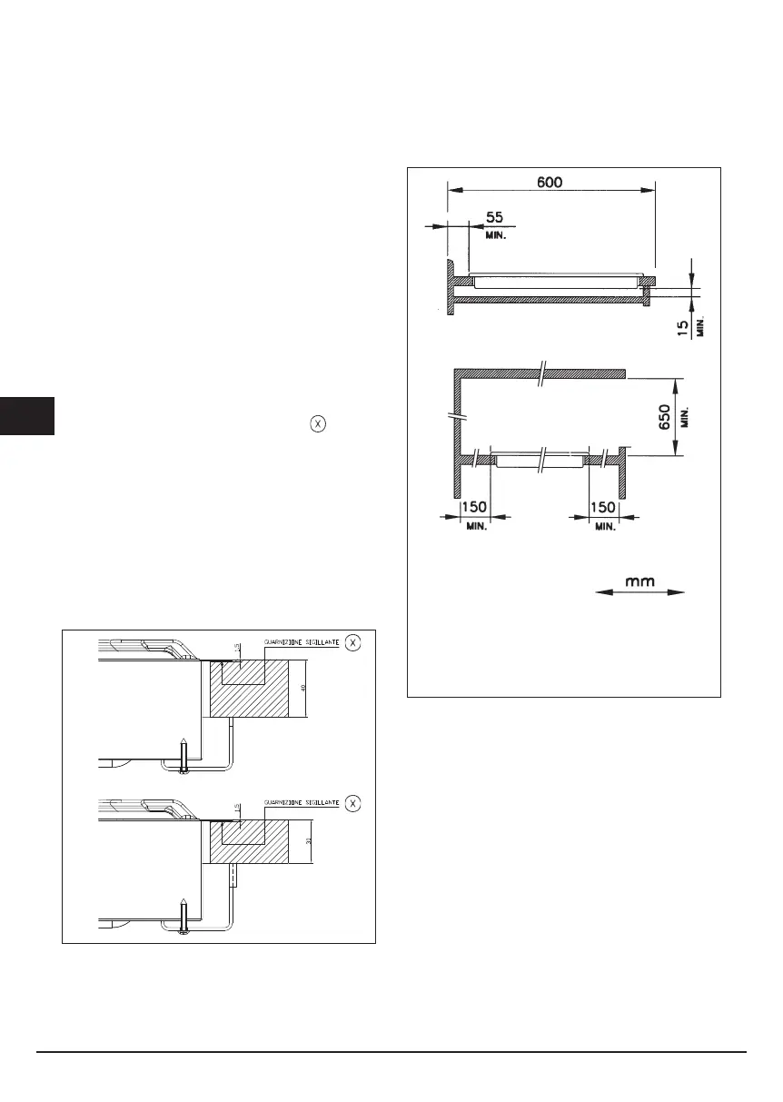
Aufstellung
(Abb. 5)
Das Gerät ist für den Einbau in eine Arbeitsfläche
vorgesehen, wie in der entsprechenden Abbildung zu
sehen.
Vor dem Einsetzen der Mulde die Dichtung auf dem
gesamten Umfang der Einbauöffnung anbringen.
Die Einbaumaße sind in den Abbildungen 6-7-8-9 zu
sehen.
Bei den Modellen Filotop (die also bündig zur
Arbeitsfläche eingebaut werden), muss der Außenrand
der Einbauöffnung um 1,5 mm tiefer gelegt werden.
Bei den Modellen Semifilotop (leicht überstehend) muss
diese Fräsung nicht ausgeführt werden.
Der Einbau kann in verschiedene Werkstoffe erfolgen
wie Stahl, Marmor, Verbundstoffe, Synthetikmaterialien,
Holz und mit Kunststofflaminat beschichtetes Holz,
wenn diese Temperaturen von 90°C standhalten.
Abb. 5
Unter der Platte mus eine Tafel aus Holz oder
anderem dämmenden Material eingebaut werden,
die in einem Mindestabstand von 15 mm von der
Muldenhülle positioniert wird.
Anleitungen für den Installateur
Abb. 5

Related product manuals