EasyManua.ls Logo

Baumatic BHG112SS - Page 8

Baumatic BHG112SS
Print Icon
To Next Page IconTo Next Page
To Next Page IconTo Next Page
To Previous Page IconTo Previous Page
To Previous Page IconTo Previous Page
Loading...
8 9
I
Installazione
Questo apparecchio non è provvisto di un dispositivo di
scarico del prodotti della combustione. Si raccomanda
che sia installato in locali sufficientemente areati
secondo le disposizioni di legge vigenti. La quantità
d’aria necessaria alla combustione non deve essere
inferiore a 2.0 m
3
/h per ogni kW di potenza installato.
Vedi tabella potenze bruciatori.
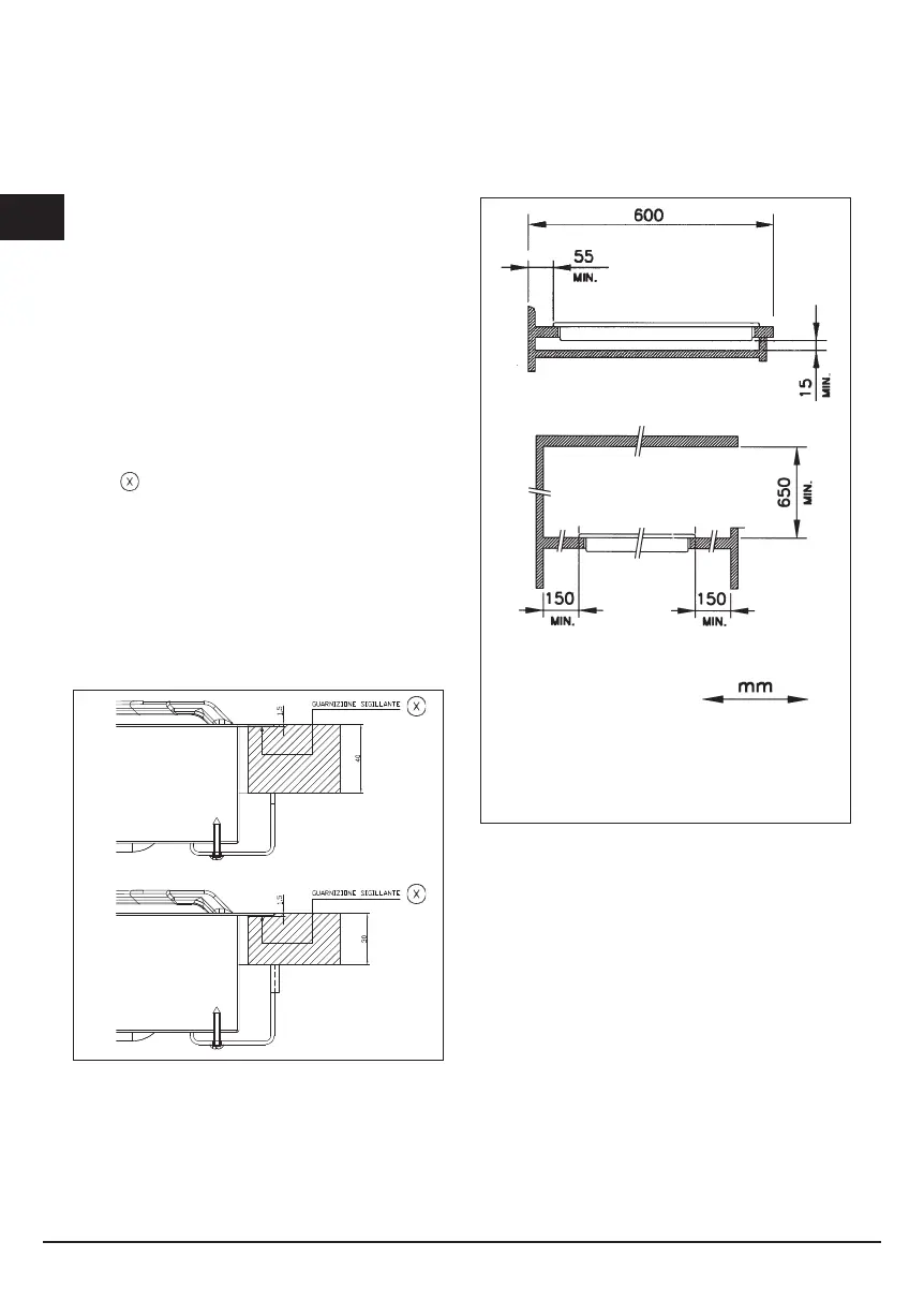
Posizionamento (Fig. 5)
L’apparecchio è previsto per essere incassato in un
piano di lavoro come illustrato nell’apposita figura.
Prima di inserire il piano predisporre la guarnizione di
tenuta su tutto il perimetro della foratura d’incasso.
Le misure d'incasso sono riportate nelle figure 6-7-8-9.
Per i modelli Filotop è necesssario eseguire un
abbassamento nella zona perimetrale del foro di incasso
per una profondità di 1,5 mm.
Per i modelli Semifilotop tale fresatura non deve essere
realizzata.
L'installazione è realizzabile su materiali diversi, quali,
acciaio, marmo, conglomerati, sintetici, legno e legno
rivestito di laminati plastici, purchè resistenti ad una
temperatura di 90°C.
Fig. 5
Sotto il pannello deve essere installato un pannello
di legno o altro materiale isolante, posizionato ad
una distanza minima di 15 mm dall'involucro del
piano.
Istruzioni per l’installatore
Fig. 5

Related product manuals