EasyManua.ls Logo

Baumatic GEM252TK - CABINET AIRFLOW AND UTENSILS GUIDELINE; Cabinet Airflow Chart; Utensils Guideline; First Uses Preparation

Baumatic GEM252TK
19 pages
Print Icon
To Next Page IconTo Next Page
To Next Page IconTo Next Page
To Previous Page IconTo Previous Page
To Previous Page IconTo Previous Page
Loading...
6
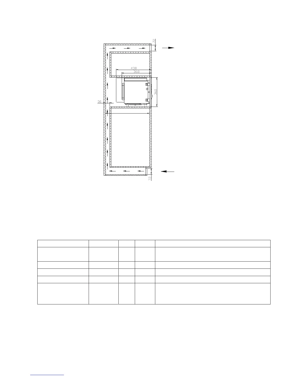
f) Cabinet airflow chart as shown in Fig.6.
Net Dept h≥ 550mm
Intake
Fig.6
Cabinet Airflow Chart
Exhaust Port
UTENSILS GUIDELINE
It is strongly recommended to use the containers which are suitable and safe for microwave cooking.
Generally speaking, the containers which are made of heat-resistant ceramic, glass or plastic are
suitable for microwave cooking. Never use the metal containers for microwave cooking and
combination cooking as spark is likely to occur. You can take the reference of below table.
Material of container
Microwave
Grill
Combi
Notes
Heat-resistant ceramic
Yes
No
No
Never use the ceramics which are decorated with
metal rim or glazed
Heat-resistant plastic
Yes
No
No
Can not be used for long time microwave cooking
Heat-resistant glass
Yes
No
No
Grill rack
No
Yes
Yes
Plastic film
Yes
No
No
It should not be used when cooking meat (such as
steak or chops) as the over temperature may do
damage to the film
FOR THE FIRST USES
As there is manufacturing residue or oil remaining on the oven cavity or heat element, it usually would
smell the odor, even a slight smoke, It is normal case and would not occur after several times use, keep
the door or window open to ensure good ventilation. So it is strongly recommended to set the oven to
grill mode and operate dry several times. Operating dry can only be conducted in the grill mode, it can
not be conducted at combination mode.

Related product manuals