EasyManua.ls Logo

baxiroca ELFATHERM E25 - Page 8

baxiroca ELFATHERM E25
15 pages
Print Icon
To Next Page IconTo Next Page
To Next Page IconTo Next Page
To Previous Page IconTo Previous Page
To Previous Page IconTo Previous Page
Loading...
8
21
22
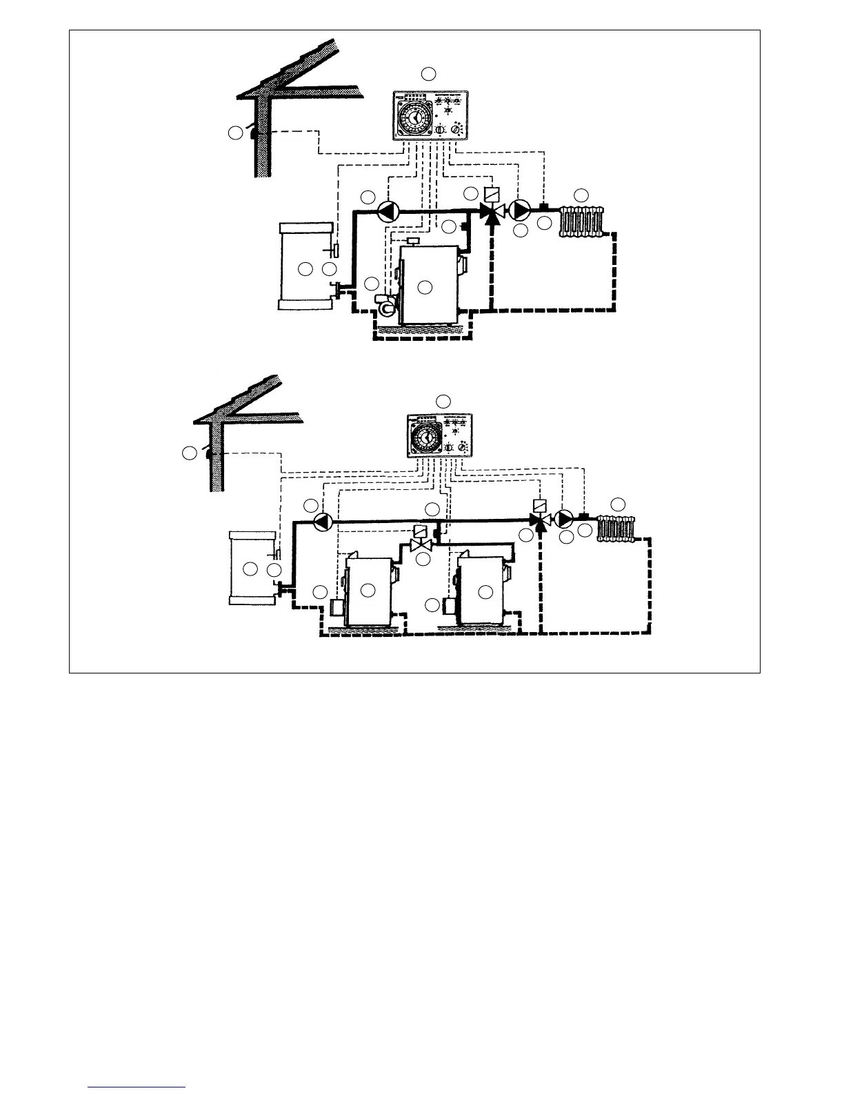
1 Central ELFATHERM E25-MQS
2 Sonda exterior AFS.
3 Sonda de ida VFAS.
4 Generador.
5 Quemador.
6 Circulador de la instalación.
7 Válvula mezcladora con servomotor.
8 Emisor.
9 Electroválvula.
10 – Depósito acumulador de A.C.S.
11 – Sonda SPFS del acumulador.
12 – Circulador de A.C.S.
1 ELFATHERM E25-MQS Controller.
2 Outdoor Sensor AFS.
3 Flow sensor VFAS.
4 Boiler.
5 Burner.
6 System pump.
7 Mixer valve with servo-motor.
8 Radiator.
9 Solenoid Valve.
10 – DHW storage cylinder.
11 – Storage cylinder sensor SPFS.
12 – DHW pump.
1 Centrale ELFATHERM E25-MQS.
2 Sonde extérieure AFS.
3 Sonde de départ VFAS.
4 Chaudière.
5 Brûleur.
6 Circulateur de l’installation.
7 Vanne mélangeuse avec servomoteur.
8 Radiateur.
9 Electrovanne.
10 – Préparateur E.C.S.
11 – Sonde SPFS du préparateur.
12 – Pompe de charge E.C.S.
1 Zentrale ELFATHERM E25-MQS.
2 Außensonde AFS.
3 Vorlaufsonde VFAS.
4 Generator.
5 Brenner
6 Umlaufpumpe der Installation.
7 Mischventil mit Servomotor.
8 Radiator.
9 Elektroventil.
10 – Warmwasserspeicher.
11 – Sonde SPFS des Speichers.
12 – Warmwasser-Umlaufpumpe.
1 Centralina ELFATHERM E-25MQS.
2 Sonda esterna AFS.
3 Sonda di andata VFAS.
4 Generatore.
5 Bruciatore a due fiamme.
6 Pompa di circolazione dell’impianto.
7 Valvola miscelatrice con servomotore.
8 Termosifone.
9 Elettrovalvola.
10 – Serbatoio di accumulo di A.C.S.
11 – Sonda SPFS del servatoio di accumulo.
12 – Pompa di circolazione dell’A.C.S.
1 Central ELFATHERM E25-MQS.
2 Sonda exterior AFS.
3 Sonda de ida VFAS.
4 Gerador
5 Queimador.
6 Circulador da instalação.
7 Válvula misturadora com servomotor.
8 Emissor.
9 Electroválvula.
10 – Déposito acumulador de A.Q.S.
11 – Sonda SPFS do acumulador.
12 – Circulador de A.Q.S.
1
2
8
3
6
7
11
12
5
4
3
10
2
10
10
11
12
5
4
4
5
9
3
7
6
3
8
2
2
1
1