EasyManua.ls Logo

Be Cool BC50LEF2301 - Unit Description and Installation; Description of Unit Components; Unpacking and Initial Setup; Installation and Placement Requirements

Be Cool BC50LEF2301
Print Icon
To Next Page IconTo Next Page
To Next Page IconTo Next Page
To Previous Page IconTo Previous Page
To Previous Page IconTo Previous Page
Loading...
Seite 29 von 40
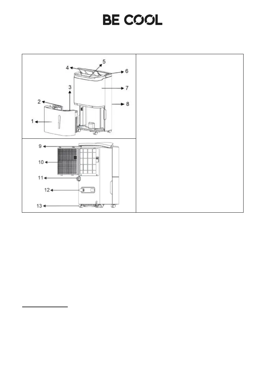
DESCRIPTION OF THE UNIT
1. Watertank
2. Watertank Handle
3. Water tank Cover
4. Wind Sheet
5. Humidity Indicator
6. Control Panel
7. Front Cover
8. Back Cover
9. Handle
10. Filter Frame
11. Drain Plug
12. Cable Suspension
13. Wheels
START UP
BEFORE THE FIRST COMMISSIONING
Unpack the Unit
Open the box and remove the unit.
Remove the packaging completely from the appliance.
INSTALLATION
Please observe the following points during installation:
Place the unit on a level and firm surface so that the unit is in a fixed
position.
The distance to walls or other objects must be at least 50 cm.