EasyManua.ls Logo

BECS BECSys2 - Section E: Installation Diagrams; E - 1: Pressure Filter Installation; E - 2: Vacuum Filter Installation

BECS BECSys2
11 pages
Print Icon
To Next Page IconTo Next Page
To Next Page IconTo Next Page
To Previous Page IconTo Previous Page
To Previous Page IconTo Previous Page
Loading...
TECHNOLOGY
Operator’s Manual
Page 7
9487 Dielman Rock Island Industrial Dr. St. Louis, MO 63132 Tel:(314) 567-0088
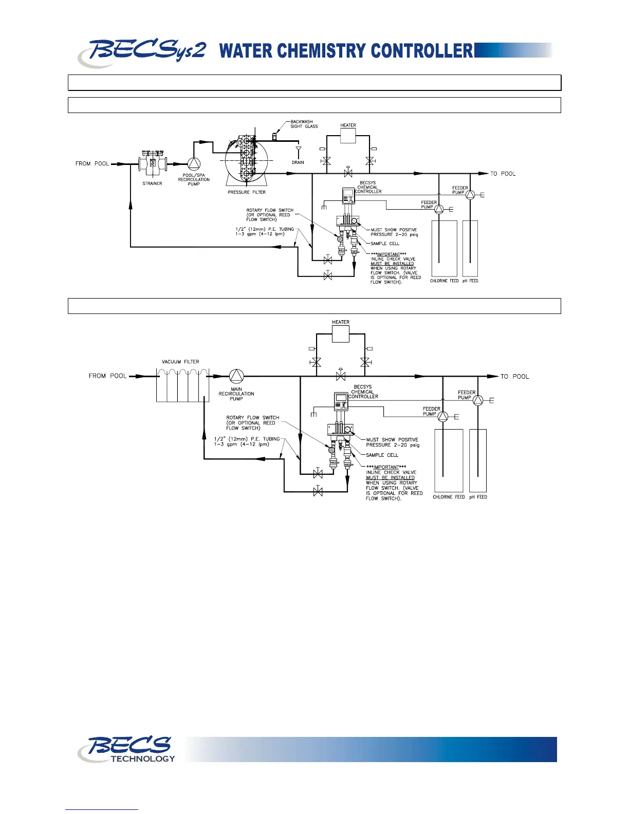
Section E: Installation Diagrams
E - 1: Pressure Filter Installation
E - 2: Vacuum Filter Installation