EasyManua.ls Logo

Belden HIRSCHMANN BRS40 - Page 14

Belden HIRSCHMANN BRS40
112 pages
Print Icon
To Next Page IconTo Next Page
To Next Page IconTo Next Page
To Previous Page IconTo Previous Page
To Previous Page IconTo Previous Page
Loading...
14
Installation BRS20/22/30/32/40/42/50/52
Release
12
01/2022
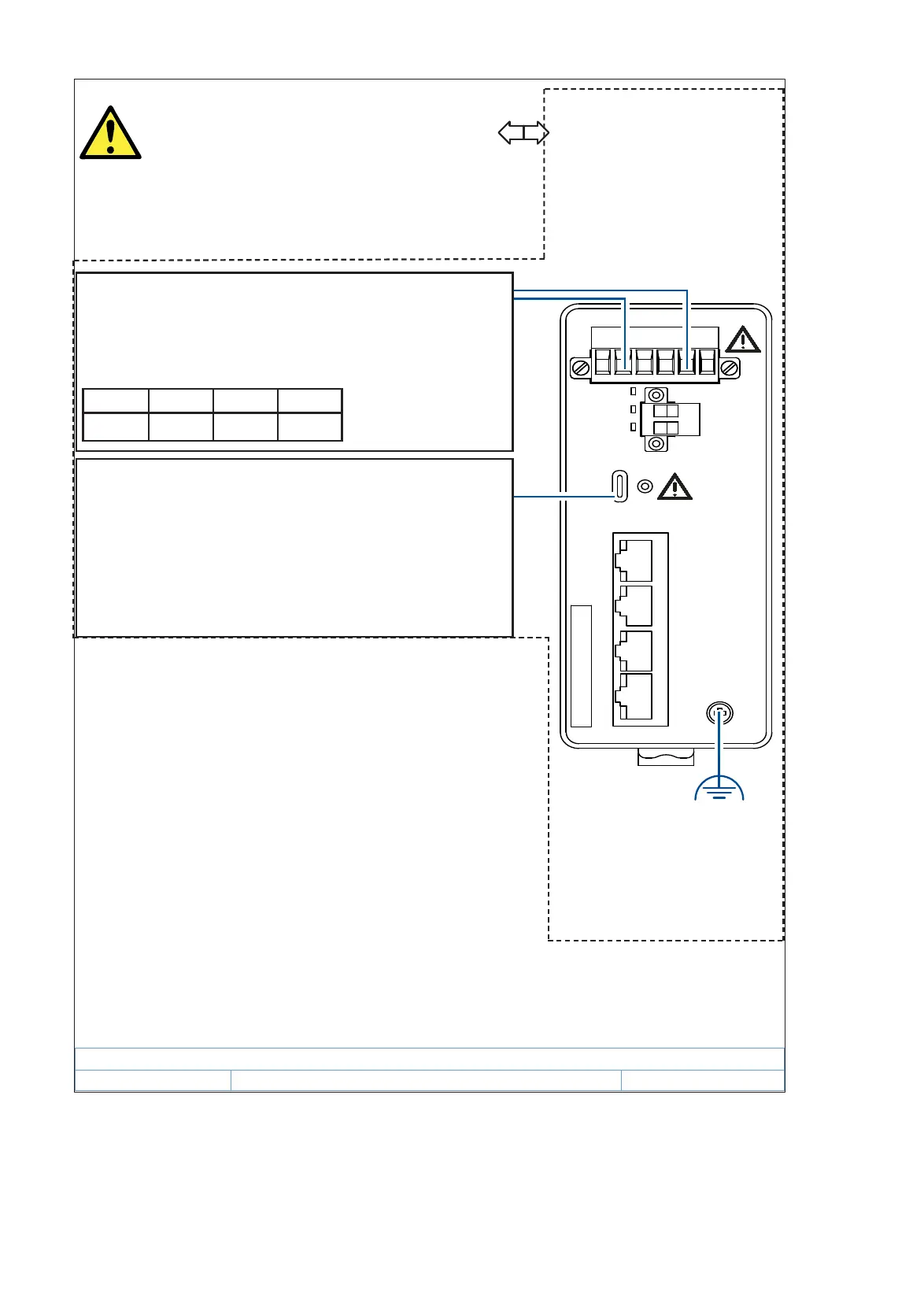
Control Drawing for BRS devices according to Class I, Division 2 Hazardous Locations
Rev.: 3 Document No.: 000217023DNR Page 1/2
Ordinary Location,
Non-Hazardous Area,
Non-Explosive Atmosphere
Explosive Atmosphere
Class I, Division 2, Groups A, B,
C, D, T4
(**)
Hazardous Location
BRS - Industrial Ethernet
BOBCAT Rail Switch
(**) Temperature Code: T4
Ambient Temperature rating:
Ta: 0 °C to +60 °C for “S“ or “C“ temperature types
7Dí&WR&IRU³7³RU³(³WHPSHUDWXUHW\SHV
(Refer to the type designation on the device.)
(*) Associated apparatus:
7KHQRQLQFHQGLYH¿HOGZLULQJFLUFXLWFRQFHSWDOORZVLQWHUFRQQHFWLRQ
RIQRQLQFHQGLYH¿HOGZLULQJDSSDUDWXVDQGDVVRFLDWHGQRQLQFHQGLYH
¿HOGZLULQJDSSDUDWXVXVLQJDQ\RIWKHZLULQJPHWKRGVSHUPLWWHGIRU
XQFODVVL¿HGORFDWLRQVZKHQFHUWDLQSDUDPHWULFFRQGLWLRQVDUHPHW
Capacity: C
a
&
i
+ C
Cable
; Inductivity: L
a
/
i
+ L
Cable
The ACA22-USB-C (EEC) storage medium is mechanically secured
to prevent disconnection.
$86%FDEOHIRUFRQ¿JXUDWLRQWKHGHYLFHPD\H[FOXVLYHO\EHXVHGLQ
non-hazardous locations.
WARNING!
&RQQHFWLRQRUGLVFRQQHFWLRQLQDQH[SORVLYHDWPRVSKHUH
FRXOGUHVXOWLQDQH[SORVLRQ
7KHPD[LPXPFDEOHOHQJWKKDVWREHGHWHUPLQHGDVIROORZV
DPD[FDEOHOHQJWK< (L
a
í/
i
) / Cable
L
(“Cable
L
“ denotes the inductance per unit length of used cable)
and
EPD[FDEOHOHQJWK< (C
a
í&
i
) / Cable
C
(“Cable
C
“ denotes the capacitance per unit length of used cable)
The lower value of (a) and (b) is to apply.
Relay contacts:
(TXLSPHQWZLWKQRQLQFHQGLYH¿HOGZLULQJSDUDPHWHUV
Polarity is not relevant.
The relay terminals are dependent upon the following entity parame-
ters
(*)
:
9PD[ ,PD[ C
i
L
i
30 V 90 mA
2 nF
1 μH
USB
Relay
The earth conductor
must be at least
the same wire size
(mm² or AWG) as the
supply conductors of
the supply voltage.

Table of Contents

Related product manuals