EasyManua.ls Logo

Belden HIRSCHMANN BRS42 - Device Variants with Casing with Characteristic Value E;D (Metal Casing)

Belden HIRSCHMANN BRS42
112 pages
Print Icon
To Next Page IconTo Next Page
To Next Page IconTo Next Page
To Previous Page IconTo Previous Page
To Previous Page IconTo Previous Page
Loading...
Installation BRS20/22/30/32/40/42/50/52
Release
12
01/2022
87
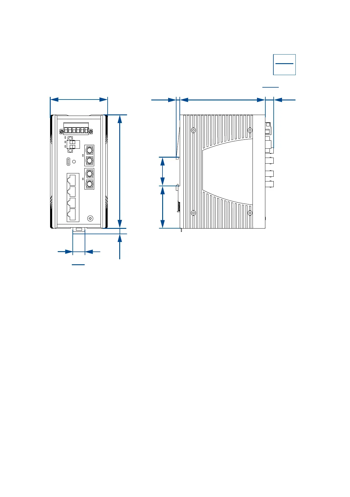
7.9.2 Device variants with casing with characteristic
value E/D (metal casing)
Figure 27: Device variants in narrow metal casing
70,7
2.78
15
0.59
140
5.51
4,2
0.17
52,2
35,6
1.4
2.06
105,5
10,3
4.15
4,55
0.18
0.41
mm
inch

Table of Contents

Related product manuals