EasyManua.ls Logo

Belimo AFBUP-S - Page 14

Belimo AFBUP-S
32 pages
Print Icon
To Next Page IconTo Next Page
To Next Page IconTo Next Page
To Previous Page IconTo Previous Page
To Previous Page IconTo Previous Page
Loading...
800-543-9038 USA 866-805-7089 CANADA 203-791-8396 LATIN AMERICA / CARIBBEAN
60
Accessories
Too
l-
06
8
mm
a
n
d
1
0
mm wr
e
n
ch
4
3442-00001 Gland (needed for additional wires
)
1
1
09
7-
0000
1 Gasket for Gland (needed for additional wires
)
NOTE
:
When using AFB24-SR N4(H), AFB24-SR-S N4(H), AFX24-SR N4, AFX24-SR-S N4 actuators,
o
nly use accessories listed on this pa
g
e.
For actuator wiring information and diagrams, refer to Belimo Wiring Guide
.
Typical Specification
S
pring return control damper actuators shall be direct coupled type which require no
c
rank arm and linkage and be capable of direct mounting to a jackshaft up to a 1.05”
diameter. The actuator must provide proportional damper control in response to a 2 to
10 VD
C
or
,
with the addition of a 50
0
Ω resistor, a 4 to 20 mA control in
p
ut from an
el
ectron
i
c contro
ll
er or pos
i
t
i
oner.
Th
e actuators must
b
e
d
es
i
gne
d
so t
h
at t
h
ey may
b
e
u
sed for either clockwise or counterclockwise fail-safe o
p
eration. Actuators shall use
a brushless DC motor controlled by a microprocessor and be protected from overload
at all angles of rotation. Run time shall be constant, and independent of torque. A 2 to
10 VDC feedback si
g
nal shall be provided for position feedback. Actuators shall be
c
ULus Approved and have a 5 year warranty, and be manufactured under ISO 9001
International Quality Control Standards. Actuators shall be as manufactured by Belimo.
AFB24-
S
R N4
(
H
)
, AFB24-
S
R-
S
N4
(
H
)
, AFX24-
S
R N4, AFX24-
S
R-
S
N4
NEMA 4, Proportional, Sprin
g
Return, 24 V, for 2 to 10 VDC or 4 to 20 mA Control Si
g
nal
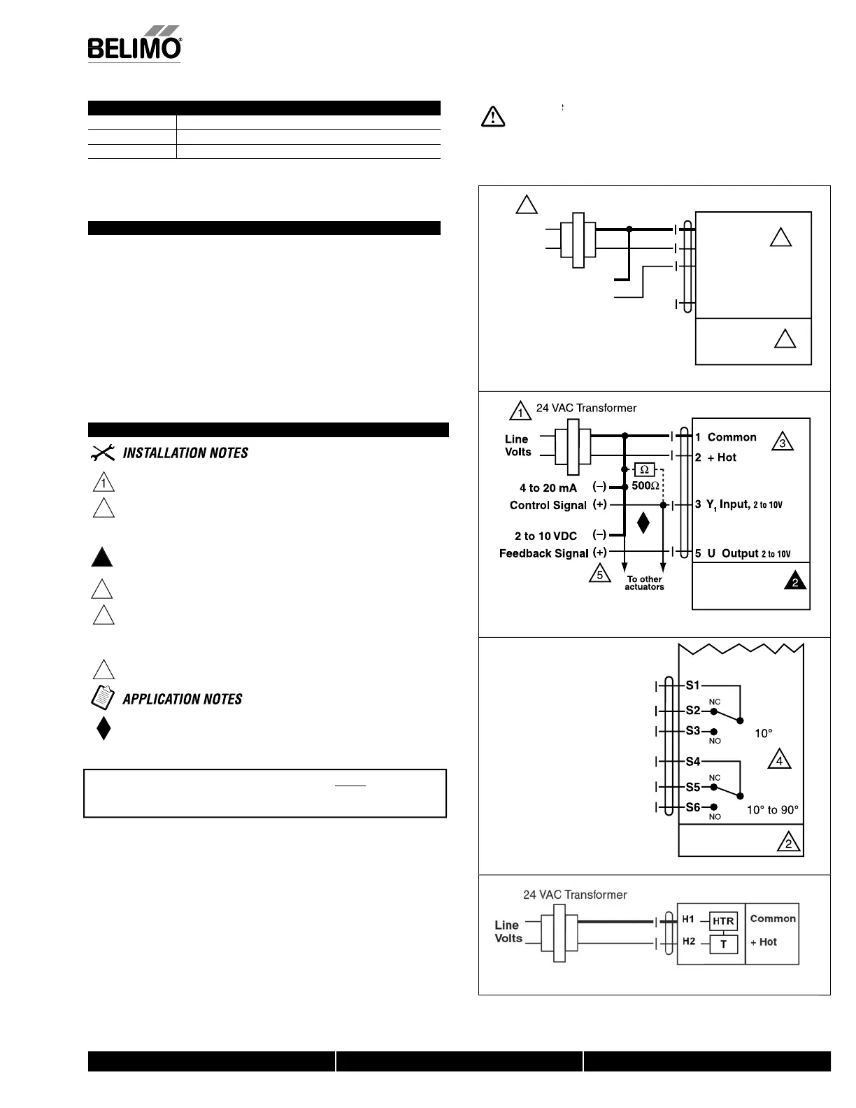
Wiring Diagrams
1
P
rov
id
e over
l
oa
d
p
rotect
i
on an
d
di
sconnect as re
q
u
i
re
d.
2
C
A
U
TI
O
N Equipment Dama
g
e
!
Actuators ma
y
be connected in
p
arallel.
P
ower consum
p
t
i
on an
d
i
n
p
ut
i
m
p
e
d
ance must
b
e o
b
serve
d
.
2
U
p to 4 actuators may
b
e connecte
d
i
n para
ll
e
l
.
Wi
t
h
4 actuator
s
wired to one 500
Ω
resistor. Power consum
p
tion must be observed
.
3
Actuator may also be powered by 24 VD
C.
4
F
or end position indication, interlock control, fan startup, etc., AFB24-SR-S N4
(
H
)
,
AFX24-
S
R-
S
N4 incorporates two built-in auxiliary switches: 2 x
S
PDT, 3
A
(
0.5A) @250 VAC, UL Approved, one switch is fi xed at +10°, one is adjustable
1
0° to 90°
.
5
O
nly connect common to ne
g
.
(
)
le
g
of control circuits
T
h
e
Z
G
-R
0
1
500
Ω
res
i
stor converts t
h
e 4 to 20 m
A
contro
l
s
i
gna
l
t
o
2 t
o
1
0
VD
C.
WARNING
Live Electrical Components!
G
Durin
g
installation, testin
g
, servicin
g
and troubleshootin
g
o
f
this product, it may be
necessar
y
to work with live electrical com
p
onents. Have a
q
uali
ed licensed electrician or other
individual who has been properly trained in handling live electrical components perform these
tasks. Failure to follow all electrical safety precautions when exposed to live electrical compo
-
nents could result in death or serious in
j
ury
.
Control Signal
(+)
2 to 10 VDC
(–)
1 Common
2 + Hot
3 Y
1
Input,
2 to 10V
5 U Output
2 to 10V
1
2
3
24 VAC Transformer
AFB24-SR N4(H)
AFB24-SR-S N4(H)
AFX24-SR N4
AFX24-SR-S N4
Line
Volts
W068_AFB24-SR_N
4
2
t
o
10 VDC c
o
ntr
o
l
AFB24-SR N4(H)
AFB24-SR-S N4(H)
AFX24-SR N4
AFX24-SR-S N4
W069_AFB24-SR_N4
4
to 20 mA control with 2 to 10 VDC feedback out
p
u
t
AFB24-SR-S N4(H)
AFX24-SR-S N4
W064_AFB24_SR_-S_N
4
Aux
i
l
i
ary sw
i
tche
s
G
K-AF-NF N4H 24V h
ea
t
e
r
NEMA
4
Hea
t
e
r
A
TTENTION
:
AFB24-SR
(
-S
)
N4
(
H
)
and AFX24-SR
(
-S
)
N4 cann
ot
be tandem
m
ounted on the same damper or valve shaft.
O
nly
O
n
/O
ff and MFT AF models can be
u
sed
f
or tandem mount a
pp
lications.
N40103 - 09/11 - Subject to change. © Belimo Aircontrols (USA), Inc.

Other manuals for Belimo AFBUP-S

Related product manuals