EasyManua.ls Logo

Belling CFE60MFTi - Page 38

Belling CFE60MFTi
44 pages
Print Icon
To Next Page IconTo Next Page
To Next Page IconTo Next Page
To Previous Page IconTo Previous Page
To Previous Page IconTo Previous Page
Loading...
INSTALLATION
CONNECT TO THE ELECTRICITY SUP-
PLY
Warning:
This appliance must be
earthed.
This appliance is not intended to be oper-
ated by means of an external timer or
separate remote control system.
The appliance must be installed by a
competent electrician using a double
pole control unit of 32 ampere minimum
capacity with 3mm minimum contact
separation at all poles.
We recommend that the appliance is con-
nected by a competent person who is a
member of a competent persons scheme.
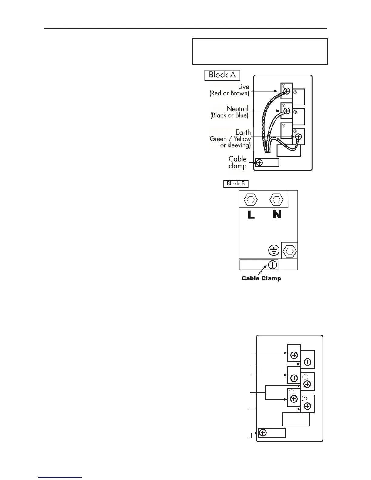
1. Access to the mains terminal is gained
by opening the terminal block cover at
therearoftheappliance(useasmallat-
bladed screwdriver).
2. Connection should be made with
6.0mm2exibletwinandearthcable.
3. First strip the wires, then push the
cable through the cable clamp in the
terminal block cover.
4. Connect the cable to the
terminal block and tighten the cable
clamp screw (see diagram).
5. Close the terminal box, ensuring that
the cover is engaged on the locking tabs.
Yourappliancewillbettedwithoneof
the terminal blocks below, Block A, Block
B, or Block C
Ifyourapplianceisttedwiththetermi-
nal block below, for multiphase appliances
please remove the links from terminals
L1, L2 and L3 only. Leave neutral links
ttedtoterminalsN4andN5.
L1
Cable clamp
Earth
(Green / Yellow
or sleeving)
PHASE 1
Neutral
N4
L2
L3
PHASE 2
PHASE 3
N5
Block C

Related product manuals