EasyManua.ls Logo

Bertazzoni DW 18PR - STEP 3 Check Water Supply Requirements and Cautions

Bertazzoni DW 18PR
25 pages
Print Icon
To Next Page IconTo Next Page
To Next Page IconTo Next Page
To Previous Page IconTo Previous Page
To Previous Page IconTo Previous Page
Loading...
S Supply Requirements And Cautions
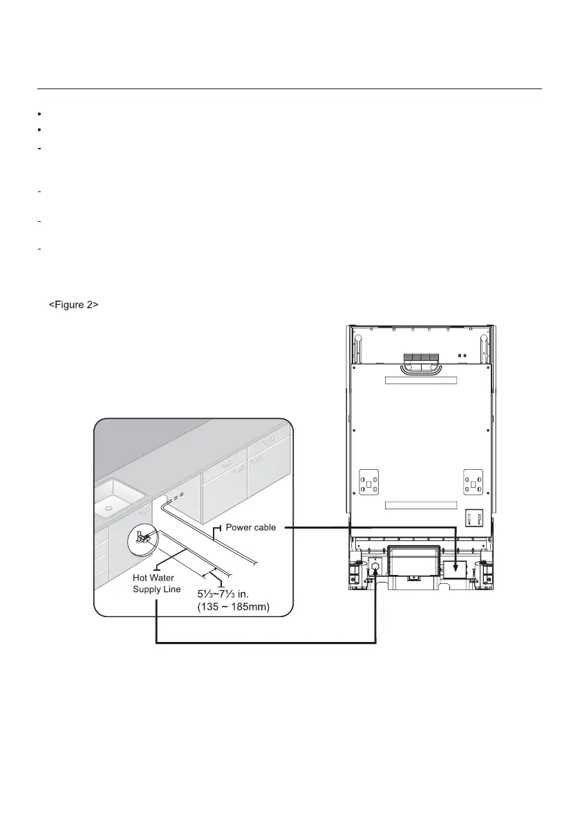
The hot water supply line pressure must be between .
Adjust the water heater to deliver water between 120 °F(49°C) ~149 °F(65°C).
The dishwasher must be connected to a hot water supply between 120 °F(49°C)~149 °F(65°C).
This temperature range provides the best washing result and shortest cycle time. Temperature
should not exceed 149 °F(65°C) to prevent damage to dishes.
Ensure that the water supply valve is turned off before connecting the hot water supply line to
the dishwasher.
Seal the hot water supply line connections using teflon tape or sealing compound to stop any
water leakage.
When you install the dishwasher, ensure there is nothing on the drain hose and be careful not
to tear it during the installation process.
11
tep 3 Check Water
5.80~145.04 PSI

Related product manuals