EasyManua.ls Logo

Bertazzoni PM36500X - Page 9

Bertazzoni PM36500X
12 pages
Print Icon
To Next Page IconTo Next Page
To Next Page IconTo Next Page
To Previous Page IconTo Previous Page
To Previous Page IconTo Previous Page
Loading...
9
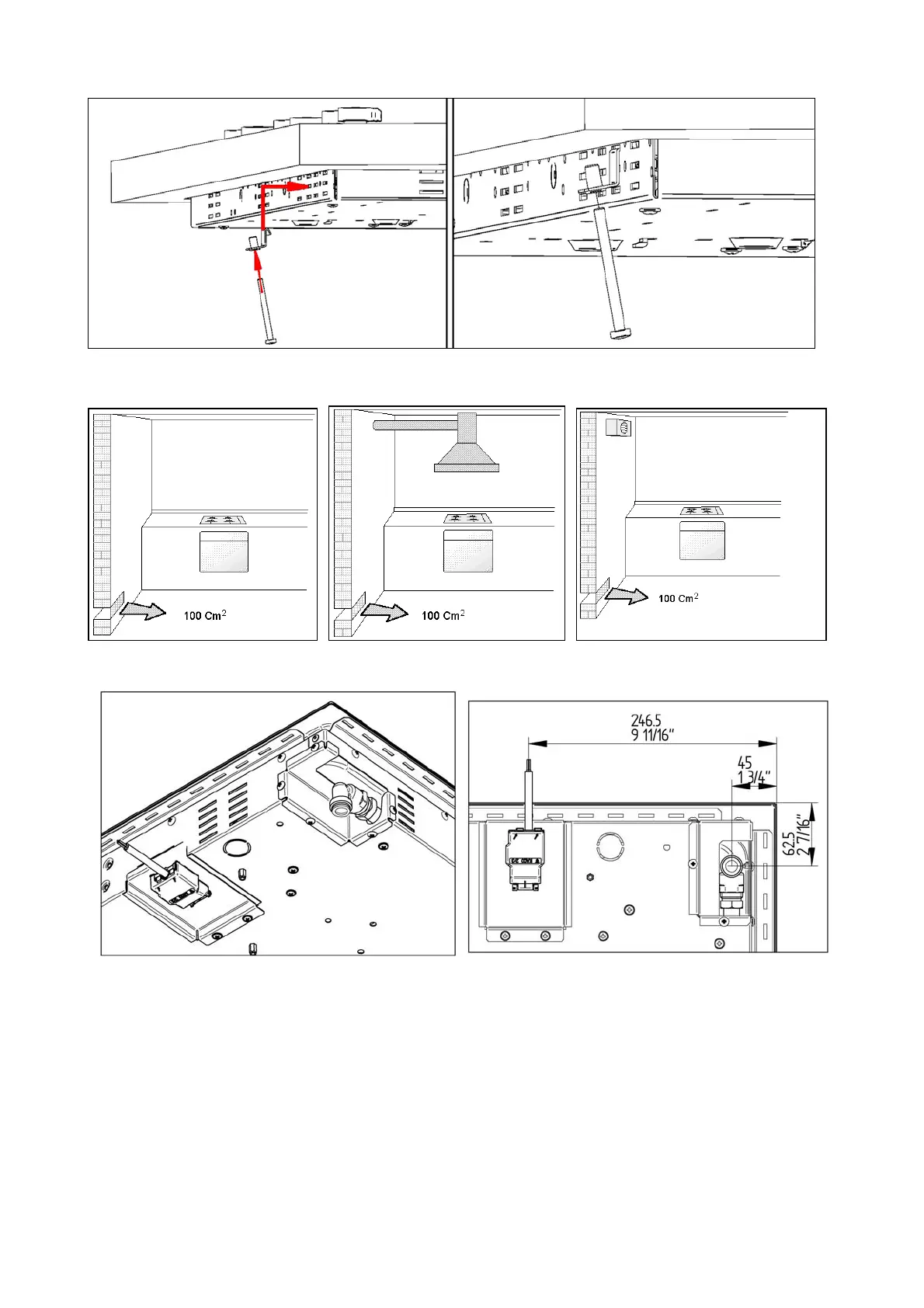
Fig. 3A Fig. 3B
Fig.4 Fig.5A Fig.5B
Fig.6 Fig.7

Related product manuals