EasyManua.ls Logo

Bertazzoni PRO365GASX - Exhaust Hood Installation

Bertazzoni PRO365GASX
31 pages
Print Icon
To Next Page IconTo Next Page
To Next Page IconTo Next Page
To Previous Page IconTo Previous Page
To Previous Page IconTo Previous Page
Loading...
11
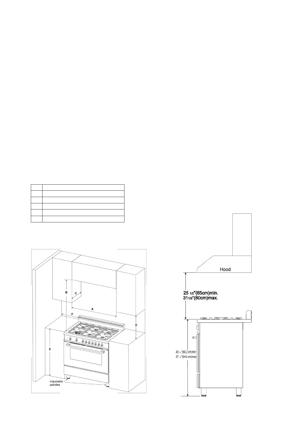
INSTALLATIONADJACENTTOKITCHEN
CABINETS
Thisrangemaybeinstalleddirectlyadjacentto
existingcountertophighcabinets(36"or91.5cm
fromthefloor).
Forthebestlook,theworktopshouldbelevel
withthecabinetcoun tertop.Thiscanbe
accomplishedbyraisingtheunitusingthe
adjustmentspindlesonthelegs.
ATTENTION:therangeCANNOT
beinstalled
directlyadjacenttokitchenwalls,tallcabinets,
tallappliances,orotherverticalsurfacesabove
36"(91.4cm)high.Theminimumsideclearance
insuchcasesis6"(15.2cm).
Wallcabinetswithminimumsideclearancemust
beinstalled18"(45.7cm)abovethecountertop
withcountertopheightbetween
35½”(90.2cm)
and37¼”(94.6cm).Themaximumdepthofwall
cabinetsabovetherangeshallbe13"(33.0cm)
EXHAUSTHOODINSTALLATION
Thisrangewillbestperformwhenused withPRO
lineBertazzoniexhausthoods.Thesehoodshave
been designed to work in conjunction with the
Bertazzoni range and have the same finish for a
perfectlook.
For maximum performance, the height of the
bottomofthe hoodfromthe worktop should be
between 25 1/2" (65 cm) and 31 1/2" (80 cm).
This would typically result in the bottom of the
hoodbeing611/2"(156.2 cm) to 67 1/2" (171.5
cm) above the floor. These measurements
provide for safe and efficient operation of the
hood.
Before installation of the exhaust hood,
consult
local or regional building and installation codes
foradditionalspecificclearancerequirements.
Refer to the range hood installation instructions
provided by the manufacturer for additional
information.
A 36” (91,5 cm)
B 36” (91,5 cm)
C 13” (33,0 cm)
D 18” (45,7 cm)
E 35”1/2(90,2 cm) / 37” ¼ (94,6 cm)
F 6” (15,2 cm)

Related product manuals