EasyManua.ls Logo

BGS GENERAL PBO - PUMP 220 PBO - M; 340 PBO - M; Spare Parts for Pumps 220;340 PBO-M

BGS GENERAL PBO
31 pages
Print Icon
To Next Page IconTo Next Page
To Next Page IconTo Next Page
To Previous Page IconTo Previous Page
To Previous Page IconTo Previous Page
Loading...
POMPE PER VUOTO LUBRIFICATE PBO PBOM
OIL LUBRICATED VACUUM PUMPS PBO - PBOM
ED. 4
REV.0
05.2009
COD.564000100
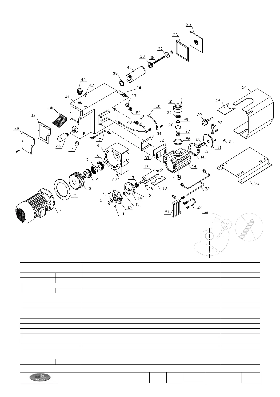
POMPA PUMP 220 PBO - M / 340 PBO M
Montaggio palette Blades assembling
KIT RICAMBI - SPARE
PARTS
Denominazione - Description
Posizione -
Position
220 PBO-M
340 PBO-M
34070
34071
kit palette blades kit
18
35129
kit guarnizioni gaskets kit
10 14 26 34
40772
40773
kit cartuccia disoliante oil remover cartridge
36 39 40 - 56
37120
kit guarnizioni aspirazione suction gaskets kit
26 27 28 29 -
30
34199
kit tappi oblò olio kit caps oil sight glasses
24 - 25 43
34104
kit guarnizioni mandata - delivery gasket kit
32 33 34
34204
filtro olio - oil filter
46
34212
livellostato olio - oil floater
34243
kit tubi olio 171- 220 pbo-m - oil pipes kit 171 - 220 pbo-m
47 50 - 52 53
34244
kit tubi olio 271- 340 pbo-m - oil pipes kit 271 - 340 pbo-m
47 50 - 52 53
34370
zavorra ballast
22 23
34504
kit antivibranti - antivibration kit
7
35630
kit cuscinetti bearings kit
13 - 15 20
36463
giunto sitex con ventola - joint with impeller
3 4 5 6
46480
tassello giunto sitex - insert for coupling
5
50220
50340
kit manutenzione completo - complete maintenance kit