EasyManua.ls Logo

Biotech PZ65RL - Page 54

Biotech PZ65RL
122 pages
Print Icon
To Next Page IconTo Next Page
To Next Page IconTo Next Page
To Previous Page IconTo Previous Page
To Previous Page IconTo Previous Page
Loading...

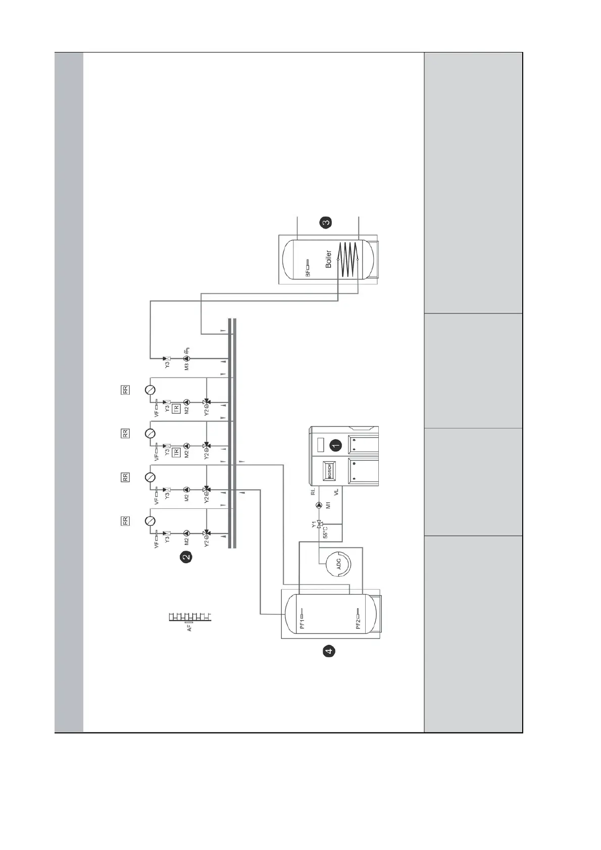
This concept is a recommendation by
Biotech. Please note that this concept
needs to be adapted to the particular
conditions of your location. For this
reason we cannot assume liability for
the functioning of the system!
Important notice:
We assume no liability for completeness and correctness of
specifications or descriptions herein including misprints. This con-
ceptional drawing does not show shut-off valves, air relief valves
and safety devices. These have to be installed in compliance with the
norms and regulations as applicable. Apply draught control with EX-
flap in the chimney!
1 Boiler
2 Distributor - Collector
3 Domestic hot water tank
4 Buffer storage
5 Solar scheme
VF Flow water probe
BF Water tank probe
PF1 Buffer probe switch-on temperature
PF2 Buffer probe switch-off temperature
ADG Expansion tank
RL Return water
AF Outside temperature probe
RR Room control
TR Thermostat (STB for FBH)
Y1 3-way valve
Y2 Motor mixer device heating circuit
Y3 Non return valve or flap
Y4 2-way zone valve
M1 Return pump
M2 heating circuit pump
M3 Loading pump hot water tank
HW Hydraulic switch
VL Flow Water
Subject to technical changes!
Please make sure that the
return flow temperature of
the boiler never runs below 55°!







   