EasyManua.ls Logo

BIRO 342 - Page 17

BIRO 342
24 pages
Print Icon
To Next Page IconTo Next Page
To Next Page IconTo Next Page
To Previous Page IconTo Previous Page
To Previous Page IconTo Previous Page
Loading...
13
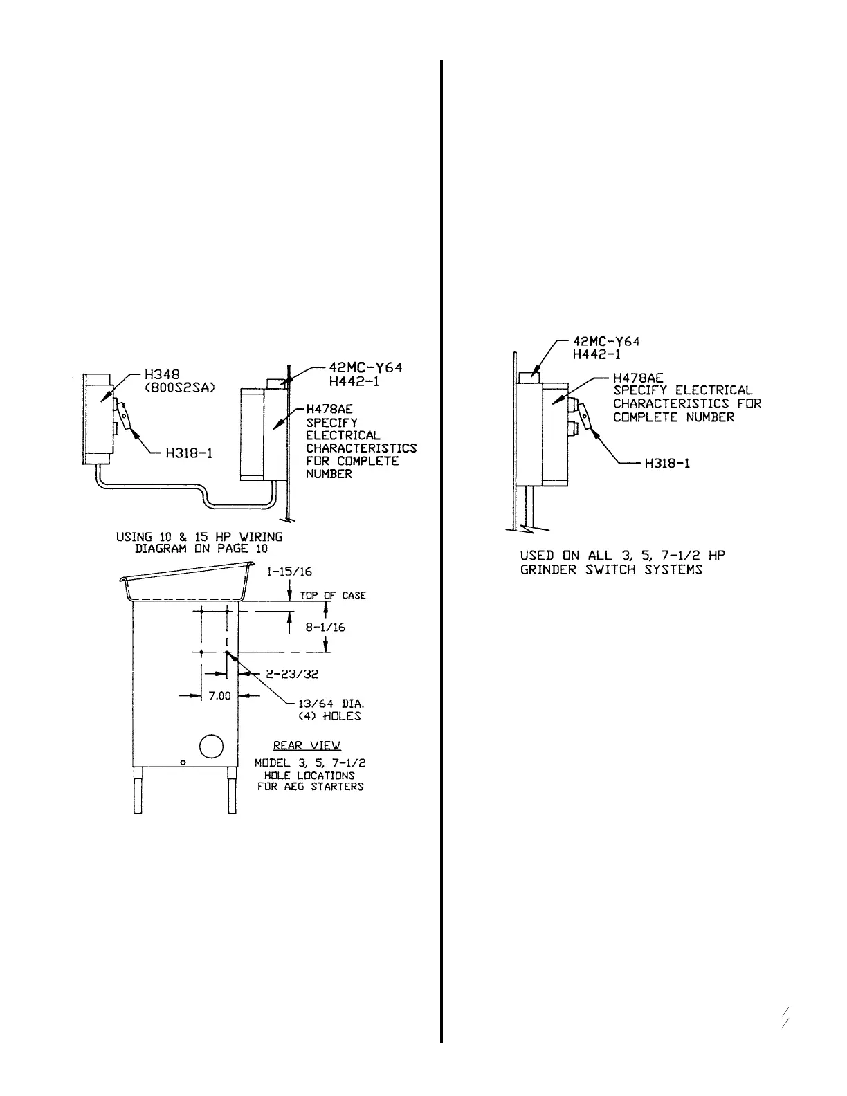
FROM SERIAL NO. 5240 TO
SERIAL NO. 9038 AND SERIAL NO.
11281 TO SERIAL NO. 24807
ORIGINALLY EQUIPPED WITH ALLEN BRADLEY
709-BAA MAGNETIC STARTER WITH MAGNETIC
SAFETY SWITCH AND AN ALLEN BRADLEY
800S-2SA START-STOP STATION. THE
START-STOP STATION IS STILL AVAILABLE, BUT
THE 709-BAA IS OBSOLETE AND NOT AVAIL
-
ABLE. UNITS REQUIRING REPLACEMENT OR RE
-
PAIR MUST BE UPDATED WITH THE
APPROPRIATE AEG STARTER. ORDER H478AE
(SPECIFY HP & VOLTS TO COMPLETE NO.)-LB.
AEG SWITCH ASSEMBLY LESS BUTTONS. THIS
SWITCH ASSEMBLY MUST BE INSTALLED BY A
QUALIFIED BIRO SERVICE AGENCY.
SERIAL NO. 24808 TO 26493
ORIGINALLY EQUIPPED WITH STROMBERG
STARTER WITH PUSH BUTTONS AND MAGNETIC
SAFETY SWITCH AS ONE UNIT. THE STROMBERG
STARTER AND INTERNAL COMPONENTS ARE NO
LONGER AVAILABLE. REPLACEMENT REQUIRES
UPDATE TO APPROPRIATE AEG EQUIVALENT.
SERIAL NO. 24808 TO PRESENT
EQUIPPED WITH AEG STARTER WITH PUSH BUT
-
TONS AND MAGNETIC SAFETY SWITCH AS ONE
UNIT.
AEG Switch Section
Part Number Description
H318-1 ......Switch cam, nylon #5240-9038 & #11281 to present
42MC-Y64 .................. Magnetic safety switch, low voltage
H442-1 .................... Magnetic safety switch,high voltage
H478AE-21A-LB .................Switch assembly less buttons
BAEG/3-C12 (3HP-208/220/230V)
H487AE-23A-LB .................Switch assembly less buttons
BAEG/3-E6 (3HP-440V)
H478AE-25A-LB .................Switch assembly less buttons
BAEG/5-C17 (5HP-208/220/230V)
H478AE-27A-LB .................Switch assembly less buttons
BAEG/5-E12 (5HP-440V)
H478AE-30A-LB .................Switch assembly less buttons
BAEG/7.5-C23 (7.5HP-208/220/230V)
H478AE-32A-LB .................Switch assembly less buttons
BAEG/7.5-E17 (7.5HP-440V)
AEG Switch Section
Part Number Description
H318.......Switch cam, aluminum (#2250-5239 & #9039-11280)
H318-1 ................................. Switch cam, nylon
42MC-Y64 .................. Magnetic safety switch, low voltage
H442-1 .................... Magnetic safety switch, high voltage
H457 .................................. Square head screw
H478AE-21A...........Switch assembly BAEG/3-C12 (208/220V)
H478AE-22A............Switch assembly BAEG/3-D6 (380/415V)
H478AE-23A ...............Switch assembly BAEG/3-E6 (440V)
H478AE-24A ............... Switch assembly BAEG/3-F6 (550V)
H478AE-25A...........Switch assembly BAEG/5-C17 (208/220V)
H478AE-26A...........Switch assembly BAEG/5-D12 (380/415V)
H478AE-27A ..............Switch assembly BAEG/5-E12 (440V)
H478AE-28A ............... Switch assembly BAEG/5-F8 (550V)
H478AE-29A .........Switch assembly BAEG/5S-C32 (230V-1PH)
H478AE-30A .........Switch assembly BAEG/7.5 C23 (208/220V)
H478AE-31A .........Switch assembly BAEG/7.5-D17 (380/415V)
H478AE-32A .............Switch assembly BAEG/7.5-E17 (440V)
H478AE-33A .............Switch assembly BAEG/7.5-F12 (550V)
H479AE-220 .............Contactor SP27.10-C0 (208/220/230V)
H479AE-380 ................ Contactor SP27.10-D0 (380/415V)
H479AE-440 .................... Contactor SP27.10-E0 (440V)
H479AE-550 .................... Contactor SP27.10-F0 (550)V
H481AE-51 ..............Overload B27S-K (3HP-380/440/550V)
H481AE-52 ..................... Overload B27S-L (5HP-550V)
H481AE-53 .............................. Overload B27S-M
(3HP-220V; 5HP-380/415/440V) (7.5HP-550V)
H281AE-31 .............................. Overload B27S-N
(5HP-220V; 7.5HP-380/415/440V) (10HP-380/415/440/550V)
H281AE-32 .............................. Overload B27S-O
(7.5PH-220V) (15HP-380/415/440/550V)
H281AE-33 .......Overload B27S-P (5HP-230V-1PH; 10HP-220V)
H478AE-ENCL-PB.......WTenclosure w/button holes (3/5/7.5HP)
H482-1........................ Green Push Button (3,5,7
1
2
HP)
H482-2 ......................... RedPush Button (3,5,7
1
2
HP)
15

Related product manuals