EasyManua.ls Logo

BIRO 542 - Electrical Controls for 10 & 15 Horsepower Grinders

BIRO 542
24 pages
Print Icon
To Next Page IconTo Next Page
To Next Page IconTo Next Page
To Previous Page IconTo Previous Page
To Previous Page IconTo Previous Page
Loading...
IMPORTANT: Must have Model and Serial Number when ordering Parts
ELECTRICAL CONTROLS
10 AND 15 HORSEPOWER GRINDERS
16
FROM SERIAL NO. 2250
TO SERIAL NO. 24729
ORIGINALLY EQUIPPED WITH ALLEN BRADLEY
709-BAA MAGNETIC STARTER WITH MAGNETIC
SAFETY SWITCH AND AN ALLEN BRADLEY
800S-2SA START-STOP STATION. THE
START-STOP STATION IS STILL AVAILABLE, BUT
THE 709-BAA IS OBSOLETE AND NOT AVAIL
-
ABLE. UNITS REQUIRING REPLACEMENT OR RE
-
PAIR MUST BE UPDATED WITH THE
APPROPRIATE AEG STARTER. ORDER H278AE
(SPECIFY HP & VOLTS TO COMPLETE NO.) AEG
SWITCH ASSEMBLY. THIS SWITCH ASSEMBLY
MUST BE INSTALLED BY A QUALIFIED BIRO SER
-
VICE AGENCY.
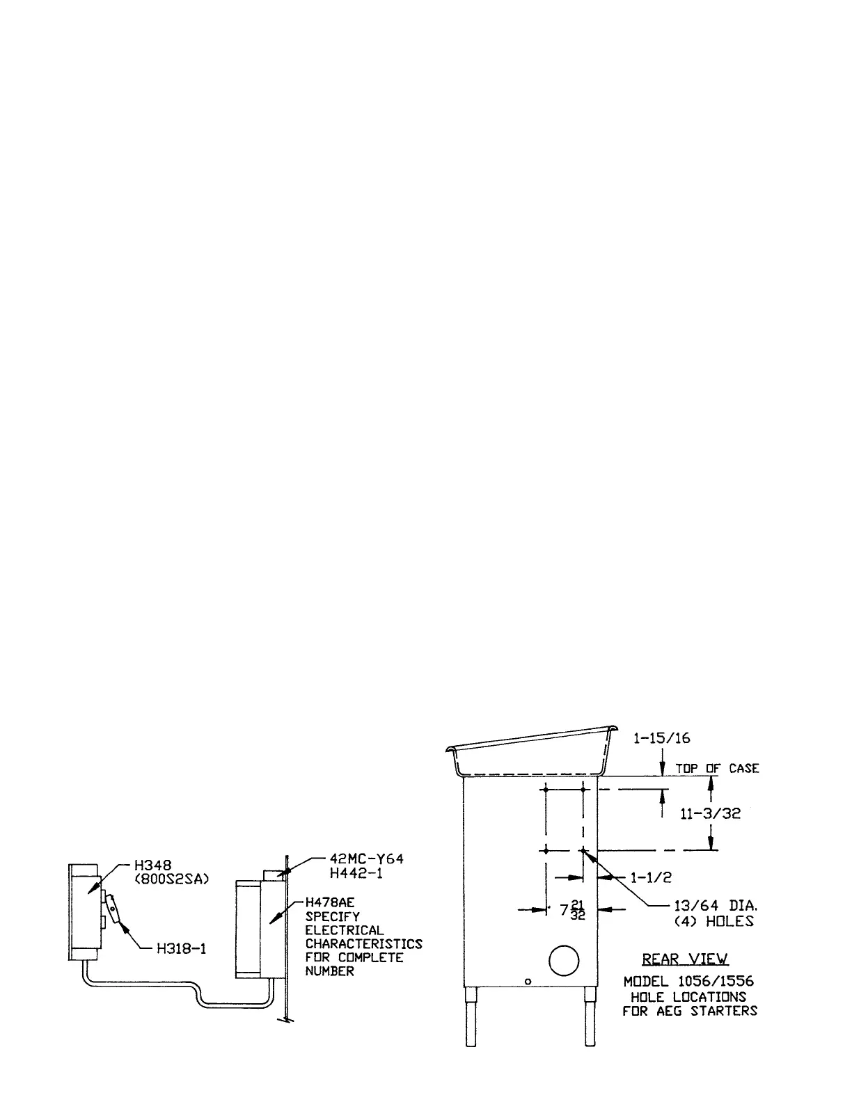
AEG Switch Section
Part Number Description
H277...........SOCord, 16/4 (10, 15HP
push button to starter)
H278AE-11A ..........Switch Assembly,
BAEG/10-C32 (220V)
H278AE-12A ..........Switch Assembly,
BAEG/10-D17 (380/415V)
H278AE-13A ..........Switch Assembly,
BAEG/10-E17 (440V)
H278AE-14A ..........Switch Assembly,
BAEG/10-F17 (550V)
H278AE-15A ..........Switch Assembly,
BAEG/15-C50 (220V)
H278AE-16A ..........Switch Assembly,
BAEG/15-D23 (380/415V)
H278AE-17A ..........Switch Assembly,
BAEG/15-E23 (440V)
H278AE-18A ..........Switch Assembly,
BAEG/15-F23 (550V)
H279AE-220.......Contactor SP37.10-C0
(208/220/230V)
H279AE-380 ......Contactor SP37.10-D0
(380/415V)
H279AE-440.......Contactor SP37.10-E0
(440V)
H279AE-550.......Contactor SP37.10-F0
(550V)
H281AE-31 ...........Overload B27S-N
(5HP-220V; 7.5HP-380/415/440V)
(10HP-380/415/440/550V)
H281AE-32 ...........Overload B27S-O
(5HP-220V)
(15HP-380/415/440/550V)
H281AE-33 ............Overload B27S-P
(5HP-230V-1PH; 10HP-220V)
(10HP-380/415/440/550V)
H281AE-34 ..........Overload B77S-QN
(15HP-220V)
H278AE-ENCL ............WTenclosure
less button holes (10/15HP)
H318-1 ..............Switch cam, nylon
(before 9039 & 11281 to present)
H348 .......Push button station 800S2SA
42MC-Y64 ........Magnetic safety switch,
low voltage
H442-1 ...........Magnetic safety switch,
high voltage
FROM SERIAL NO. 24780
TO SERIAL NO. 26586
ORIGINALLY EQUIPPED WITH STROMBERG
STARTER WITH MAGNETIC SAFETY SWITCH AND
AN ALLEN BRADLEY 800S-2SA START-STOP
STATION. THE START-STOP STATION IS STILL
AVAILABLE, BUT THE STROMBERG STARTER AND
INTERNAL COMPONENTS ARE NO LONGER
AVAILABLE. REPLACEMENT REQUIRES UPDATE
TO APPROPRIATE AEG EQUIVALENT.
FROM SERIAL NO. 24780
TO PRESENT
EQUIPPED WITH AEG MAGNETIC STARTER AND
AN ALLEN BRADLEY 800S-2SA START-STOP
STATION.
18

Related product manuals