EasyManua.ls Logo

Bitzer CSH9553-180Y - Page 25

Bitzer CSH9553-180Y
124 pages
Go to English
Print Icon
To Next Page IconTo Next Page
To Next Page IconTo Next Page
To Previous Page IconTo Previous Page
To Previous Page IconTo Previous Page
Loading...
SB-170-10 25
257
513
572
114 540
1353
250
534
50 50
261 457
1/8-27 NPTF
6
33
M10x20
10
550
108
135
Ø17
12033
305
360
308 292
616
7/16-20 UNF
3 (LP)
O
N
20
I1 I2
1/8-27 NPTF
2 (HP)
13
Ø22 (7/8'')
17
43
SL
DL
16
1/8-27 NPTF
1 (HP)
5
9
4
1/8-27 NPTF
12
1 1/8-18 UNEF
4 / 8
1 1/8-18 UNEF
5/8-18 UNF
M22x1,5
(Adaptor connection:
Ø16 / 5/8'')
1/8-27 NPTF
3 (LP)
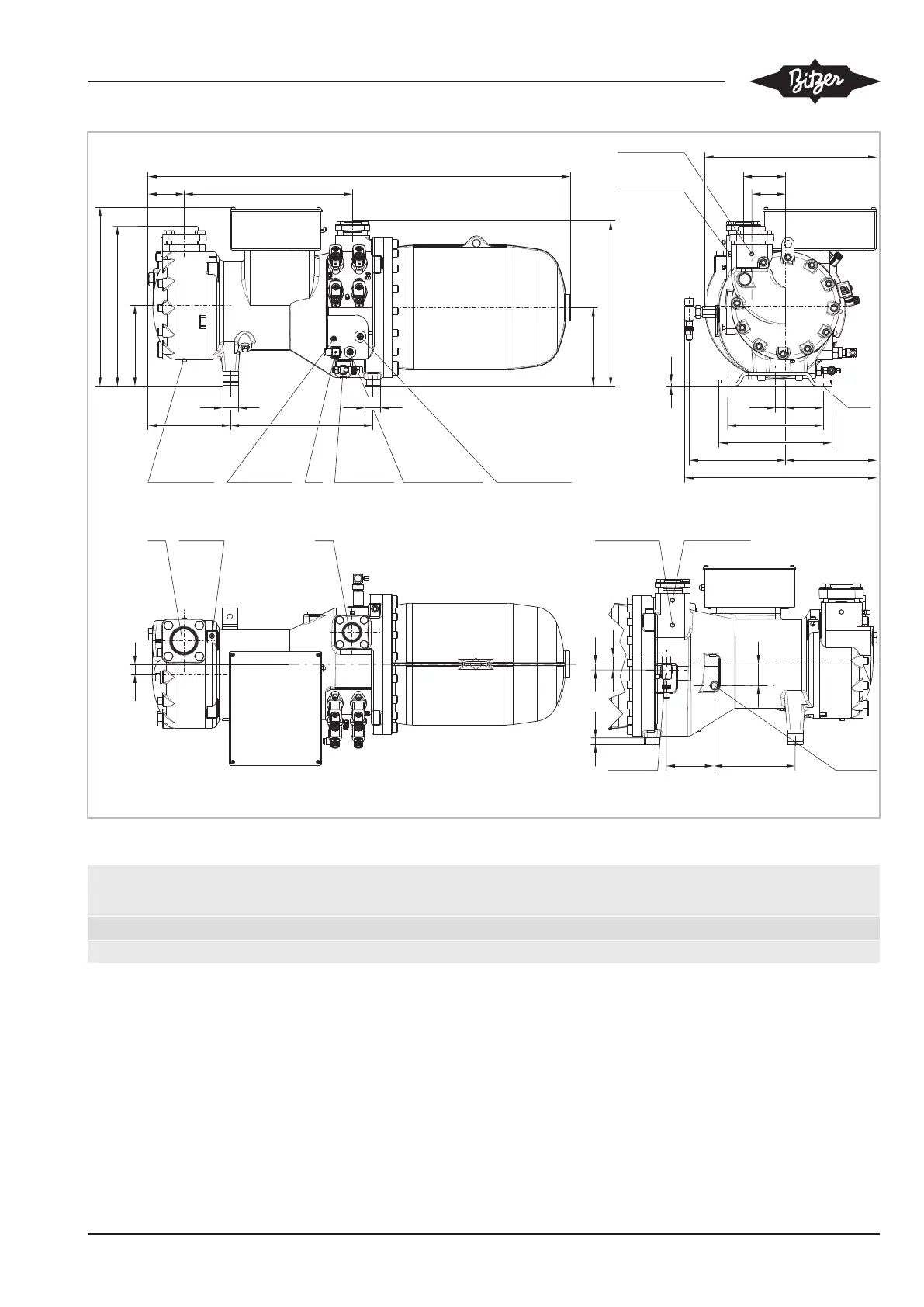
Abb.13: Maßzeichnung CSW7573-60Y .. CSW7593-90(Y), CSH7673-70Y .. CSH7693-90Y
I1
mm
I2
mm
N
mm
O
mm
CSW7573, CSH7673 153 258 20 70
CSW7583, CSW7593, CSH7683, CSH7693 157 261 23 70
Darstellung mit optionalem ECO-Ventil (Position 13). Legende für Anschlüsse siehe Tabelle 8, Seite 29.

Table of Contents

Related product manuals