EasyManua.ls Logo

Bitzer CSH9553-180Y - Connections and Dimensional Drawings

Bitzer CSH9553-180Y
124 pages
Go to English
Print Icon
To Next Page IconTo Next Page
To Next Page IconTo Next Page
To Previous Page IconTo Previous Page
To Previous Page IconTo Previous Page
Loading...
SB-170-10 59
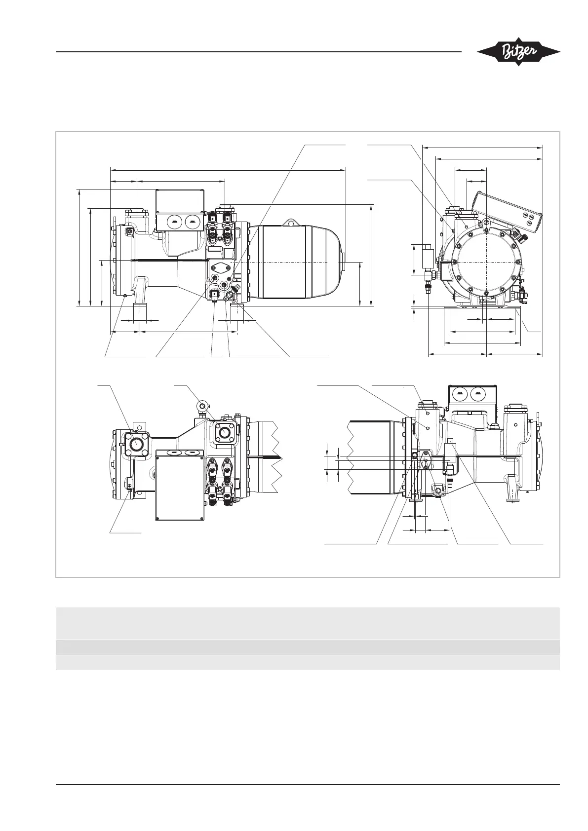
5.6 Connections and dimensional drawings
CSH6553 .. CSH95113, CSK6153 .. CSK7193
7/16-20 UNF
3 ( )LP
1/8-27 NPTF
6
1 1/8-18 UNEF
4
9
12
4 / 8
47
M10x20
16
1/8-27 NPTF
5
1 1/8-18 UNEF 5/8-18 UNF
Ø21
A
126
415
8
94
150
565
140 457
60 60
146
20 132
305
360
275 263
208
L
215
H
62
41
SL
DL
1/8-27 NPTF
1 ( )HP
1/8-27 NPTF
2 ( )HP
5
161
M22x1,5
(Valve connection:
Ø12 / 1/2'')
15
2x 1 1/4''-12 UNF
(Adaptor connection:
Ø12 / 1/2'')
11
10
13
1/8-27 NPTF Ø22 (7/8'')
550
504
1/8-27 NPTF
3 ( )LP
3 ( )LP
Fig.8: Dimensional drawing CSH6553-35Y..CSH6593-60Y, CSK6153-50 .. CSK6163-60
A
mm
H
mm
L
mm
CSH6553, CSH6563, CSK6153, CSK6163 1107 460 478
CSH6583, CSH6593 1207 469 481
Representation with optional ECO valve (position 13). Legend for connections, see table 8, page 68.

Table of Contents

Related product manuals