EasyManua.ls Logo

Bitzer CSH9583-280Y - Page 63

Bitzer CSH9583-280Y
124 pages
Go to English
Print Icon
To Next Page IconTo Next Page
To Next Page IconTo Next Page
To Previous Page IconTo Previous Page
To Previous Page IconTo Previous Page
Loading...
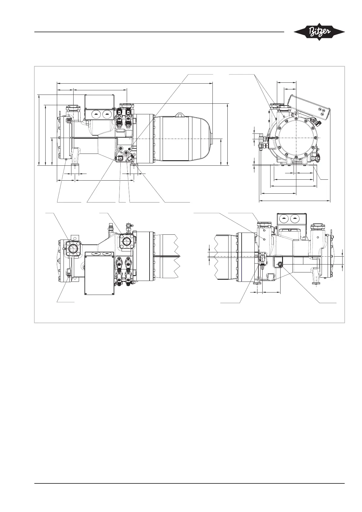
SB-170-10 63
CSW6583 .. CSW10593, CSH7673 .. CSH96113
60
457
360
273
1/8-27 NPTF
3 (LP)
1/8-27 NPTF
6
1 1/8-18 UNEF
4
9
12
4 / 8
42
17
551
Ø22 (7/8'')
13
SL
DL
M10x20
16
1/8-27 NPTF
1 (HP)
1/8-27 NPTF
2 (HP)
60
1/8-27 NPTF
5
1 1/8-18 UNEF 5/8-18 UNF
M22x1,5
(Adaptor connection:
Ø16 / 5/8'')
179
62
10
43
43
305
20
Ø21
208
481
94
149
1207
126
415
215
468
550
140
8
132
Fig.12: Dimensional drawing CSW6583-40Y .. CSW6593-60(Y)
Presentation with optional ECO valve (position 13). Legend for connections, see table 8, page 68.

Table of Contents

Related product manuals