EasyManua.ls Logo

Bitzer SE-C2 - Page 16

Bitzer SE-C2
24 pages
Print Icon
To Next Page IconTo Next Page
To Next Page IconTo Next Page
To Previous Page IconTo Previous Page
To Previous Page IconTo Previous Page
Loading...
16
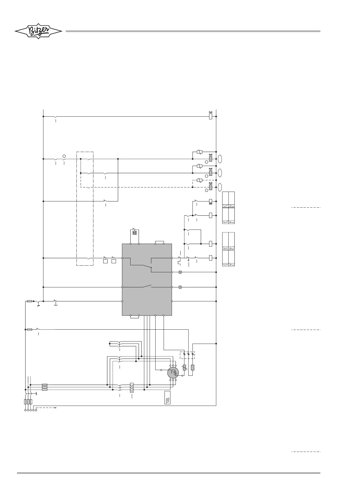
CSH: Star-delta start
Infinite capacity control
CSH: Démarrage à étoile-triangle
Régulation de puissance en continu
CSH: Stern-Dreieck-Anlauf
Stufenlose Leistungsregelung
ST-121-2
1 2 3 4 5 6 7 8 9 1 0 1 1 1 2 1 3 1 4 1 5 1 6 1 7 1 8 1 9 2 0 2 1
K 1
1 2
K 3
1 4
Y 2
C R 3C R 2
C R 4
U
1
L 1
L 2
L 3
N
P E
F 1
1
0
Q 1
F 2
K 3
1 4
S 2
K 3
1 4
2 - 3 s
5 / 5 / 5 / 1 2
1 4
1 1
M 1
1
2
3
R 3 - 8
T 1
7
8
9
s c h w a r z / b l a c k / n o i r
b r a u n / b r o w n / m a r r o n
b l a u / b l u e / b l e u
R 2
M 3
T 2
M 3
H 2
F 5
B 2
P >
S E - C 1
N
L
L 3
L 2
L 1
2 1
7
4
3
1 1
2 4
1 2 1 4
K 3 T
K 1
1 2
F 1 3
1 1
H 1
F 6
P <
Y 3 Y 4 Y 5
K 2 K 3
8
5
6
0 1
S 1
F 3
4 AF 4
K 1
1 2
R 1
5
1 1
1 2
K 1
1 2
K 2
1 1
K 1
K 3 T
1 5
K 2
1 1
K 1
1 2
K 2
1 1
K 3
1 4
K 1
1 2
K 3
1 4
I E C
F 1 3
2
11
K 3
1 4
L i m i t
C R 5 0 %
L i m i t
C R 2 5 %
2 / 2 / 2 / 1 3 / 1 4
1 8 / 2 1 / 3 1 / 3 2
6 / 4 2
4 / 4 / 4 / 1 7
1 8 / 3 1 / 3 2
1 1 / 1 5 / 1 5
O p t i o n
UU
1
2
F 8
2
Temps d'impulsion environ 0,5 s .. max. 1 s,
dépendant de la caractèristique de l'installation,
voir aussi manuel SH-170.
Avec un temps de commutation de Y à de plus
que 2 s en lieu de contact à fermeture K3/14
dans chemin 18 un relais temporisé doit être utili-
sé avec une temporisation de 2 s max.
Options:
fonctionnement ECO, injection de liquide et con-
trôle de niveau d’huile
schémas de principe (chemins 31 à 44) voir
aussi SH-170.
Pulsing time approx. 0.5 s .. max. 1 s, depen-
ding on characteristic of the plant,
see also Applications Manual SH-170.
With a Y/
switching time > 2 s insead of
normally open contact K3/14 in path 18 a
time relay must be used with time delay of
2 s at maximum.
Options:
ECO operation, liquid injection and oil level
switch.
Schematic wiring diagrams of the options
(pathes 31 to 44) see also SH-170.
Impulszeit ca. 0,5 s .. max. 1 s,
abhängig von Anlagen-Charakteristik,
siehe auch Handbuch SH-170.
Bei Y/-Umschaltzeit > 2 s muss an Stelle
des Schließkontaktes K3/14 im Pfad 18 ein
Zeitrelais eingesetzt werden mit max. 2 s
Verzögerungszeit.
Optionen:
ECO-Betrieb, Kältemittel-Einspritzung und
Ölniveau-Überwachung.
Prinzipschaltbilder der Optionen (Pfade 31
bis 44) siehe ebenfalls SH-170.

Related product manuals