EasyManua.ls Logo

Blue Wave NE122SS - Ladder Installation; Attaching Pivot Balls; Securing Bottom Step; Ladder Placement and Securing

Default Icon
4 pages
Print Icon
To Previous Page IconTo Previous Page
To Previous Page IconTo Previous Page
Loading...
STEP 4
Figure 4
Slide 1 pivot ball onto the bottom of each
handrail
Make sure both pivot balls are securely
fastened to each handrail. See figure 4
Figure 5
Place the bottom step on the floor facing up
Hold the ladder assembly straight up and align
the pivot balls with the receivers on the bottom
step.
Push down firmly until both balls are inserted
into the step. See figure 5
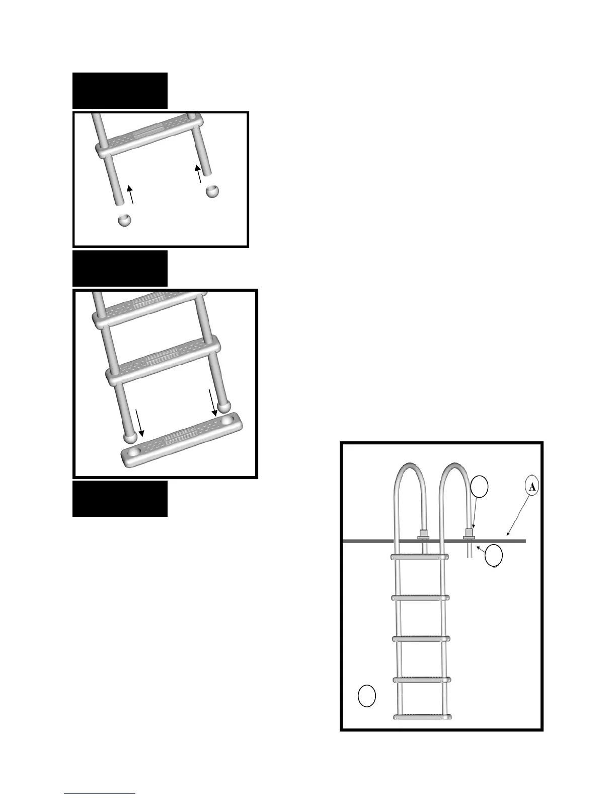
STEP 5
Figure 6
STEP 6
Ladder Placement - Figure 6
Locate ladder in desired position on deck. (A)
Make sure base step rests flat against the pool
floor. Swivel step if needed to align with pool
floor. (B)
Mark location of handrails on deck with a pencil.
Using a 1 1/2” hole saw, drill 1 hole for each
hand rail through deck surface. (C)
This will ensure that the deck will now support
the ladder.
Secure hand rails to deck using deck flanges (D)
Slide flanges over each hand rail, insert handrails
through the holes in the deck. Secure flanges to
deck with screws. Secure flange to handrail using
set screw.
B
C
D

Related product manuals