EasyManua.ls Logo

BlueStar PRZIDCB15 - Dimensions

BlueStar PRZIDCB15
26 pages
Print Icon
To Next Page IconTo Next Page
To Next Page IconTo Next Page
To Previous Page IconTo Previous Page
To Previous Page IconTo Previous Page
Loading...
P/N 750301 Page 9
All specifications are subject to change without prior notification
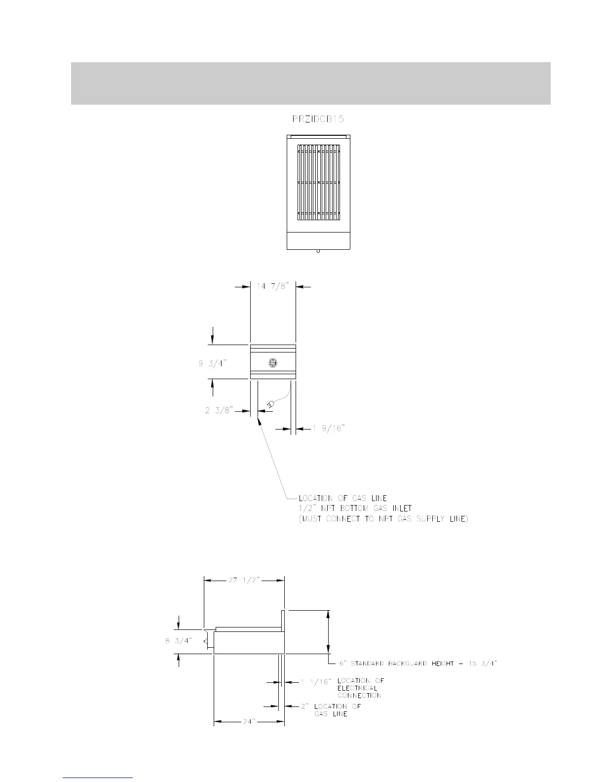
15 INCH INDOOR CHARBROILER DIMENSIONS
FRONT VIEW