EasyManua.ls Logo

Blyss NE10FB - Page 140

Blyss NE10FB
198 pages
Print Icon
To Next Page IconTo Next Page
To Next Page IconTo Next Page
To Previous Page IconTo Previous Page
To Previous Page IconTo Previous Page
Loading...
Antes de começar
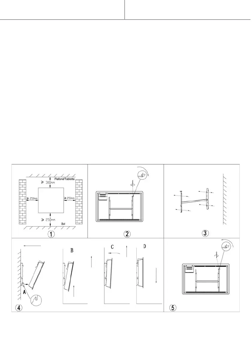
4. Coloque o aquecedor contra o suporte (Imagem 4):
A : Alinhe o aquecedor nos 2 ganchos inferiores
virados para baixo.
B : Puxe o aquecedor para cima enquanto o suporta
nos 2 ganchos inferiores.
C : Alinhe o aquecedor nos 2 ganchos superiores
virados para cima.
D : Puxe o aquecedor para baixo.
5. Faça deslizar a placa de metal para o orifício e
aperte o parafuso para fixar o suporte de montagem
na parede (Imagem 5).
08PT

Related product manuals