EasyManua.ls Logo

BONFIGLIOLI TA 40

BONFIGLIOLI TA 40
34 pages
To Next Page IconTo Next Page
To Next Page IconTo Next Page
To Previous Page IconTo Previous Page
To Previous Page IconTo Previous Page
Loading...
22
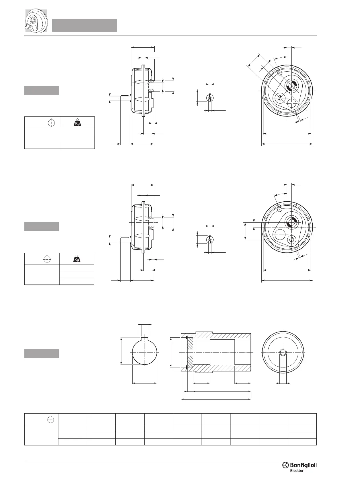
TA 45
TA 45
TA 45_D
OUTPUT
B G7 BB BH G H R S T V
TA 45
45 45 14 48.8 14 M16 162 60 140 35
50 50 14 53.8 14 M16 162 60 140 35
55 55 16 59.8 14 M16 162 65 140 35
TA 45
45 34
50 34
55 33
TA 45
45
D
38
50 38
55 37


162
20.5*
15
62
60 164
344
9
33
364*
28 h6
B
75
22°30'
120
M10
8
31
48
M10
8
31
162
20.5*
15
62
60 164
344
9
33
364*
28 h6
B
75
22°30'
34
123
* Le superci sono grezze * Surfaces are unmachined * Oberächen nicht bearbeitet * Les surfaces sont non-usinées

Related product manuals