EasyManua.ls Logo

Bosch 125FX LP - Installation Clearances; Clearances from Combustible Materials

Bosch 125FX LP
26 pages
Print Icon
To Next Page IconTo Next Page
To Next Page IconTo Next Page
To Previous Page IconTo Previous Page
To Previous Page IconTo Previous Page
Loading...
36 720 606 601
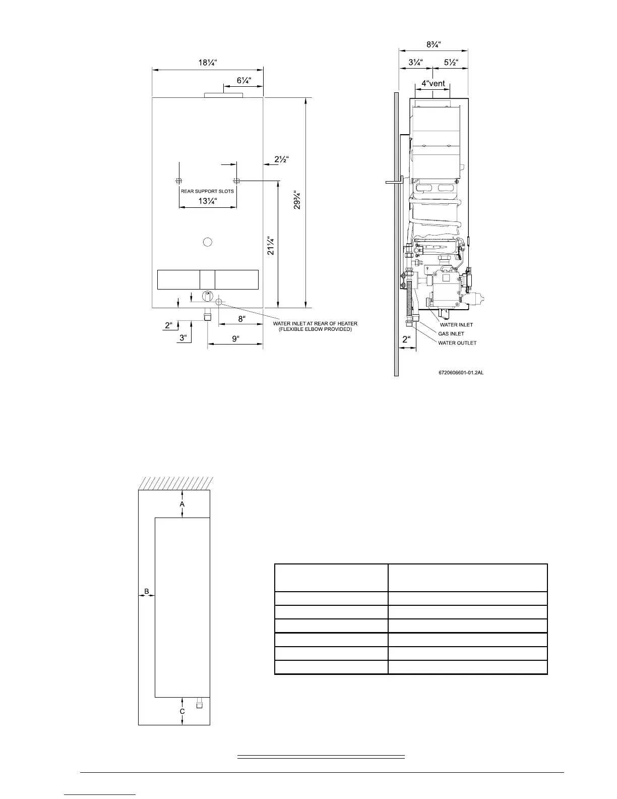
MINIMUM INSTALLATION CLEARANCES FROM COMBUSTIBLE AND NON
COMBUSTIBLE MATERIALS FOR ALCOVE OR CLOSET INSTALLATIONS
FRONT VIEW SIDE VIEW
AQUASTAR MODEL 125FX
* On a combustible wall surface the unit should be mounted away
from the wall to provide adequate clearance of the vent pipe.
See page 5 for instructions.
TOP (A) 12 "
FRONT (B) 4 "
BACK 0 " *
SIDES 4 "
FLOOR (C) 12 "
VENT DIAMETER 4 "
MODEL 125FX

Other manuals for Bosch 125FX LP

Related product manuals