EasyManua.ls Logo

Bosch 24614 - Page 31

Bosch 24614
52 pages
Print Icon
To Next Page IconTo Next Page
To Next Page IconTo Next Page
To Previous Page IconTo Previous Page
To Previous Page IconTo Previous Page
Loading...
Consignes de fonctionnement
-31-
Vous prolongerez la durée de vos embouts et
accomplirez un travail plus net si vous mettez toujours le
embout en contact avec le mariau avant d’appuyer sur
la chette. Durant le fonc tionnement, tenez l’outil
fermement et exercez une pres sion légère et constante.
Une trop grande pression à basse vitesse bloquera
l’outil. Une pression insuffisante em pêchera le embout
de couper et causera une friction excessive en glis sant
par-dessus la surface. L’outil et le embout peuvent ainsi
être abîmés.
ENFONCEMENT À VITESSE VARIABLE
La technique consiste à commencer lente ment, puis à
augmenter la vitesse à mesure que la vis s’enfonce.
Posez la vis de manre à obtenir un ajustement doux en
ralentissant jusqu’à l’arrêt. Avant d’enfoncer des vis, il
faut percer des trous de positionnement et de
gagement.
Tenez toujours la machine droite sur le boulon à serrer.
Il est préférable de proder à un essai pour déterminer
la durée appropriée de percussion/serrage. Pour les
petites vis, la durée appropriée de percussion/serrage
peut être atteinte en moins de 0,5 seconde. Par
conséquent, travaillez à bas régime et mettez
immédiatement la machine à l’arrêt lorsque la vis est
serrée et que le son de percussion se fait entendre.
Pour enfoncer des vis à bois plus grosses et plus
longues dans des matériaux durs, il est préférable de
prépercer.
COUPLE DE SERRAGE
(modèles 24614, 24618, IWH141
et IWH181 s
eulement)
Le couple de serrage pend de la due de l’action de
percussion/serrage. Le couple de serrage le plus éle
est obtenu après environ 6 à 10 secondes d’action de
percussion/serrage.
Laugmentation du couple dépend des facteurs
suivants:
Dureté des boulonscrous
Type de rondelle (rondelle à disque, rondelle frein,
joint)
Dureté du matériau à réunir
Effet de lubrification sur les surfaces de la jonction
Ceci nous ane aux cas d’application suivants :
Cas dur : Jonction métal-métal à l’aide d’une rondelle à
disque. Le couple maximum est atteint aps une action
relativement brève de percussion/serrage.
Cas moyen : Jonction tal-métal où une rondelle frein
annulaire, une rondelle frein à disque, des boulons
d’ancrage ou des boulons/écrous avec cales coniques
sont employés.
Cas doux : Jonction de métal à du bois ou à un mariau
d’isolation, par exemple.
Pour les cas moyen ou doux de jonction, le couple de
serrage maximal est inrieur à celui des cas durs. Par
conséquent, une action plus longue de
percussion/serrage est nécessaire pour obtenir le couple
de serrage maximal.
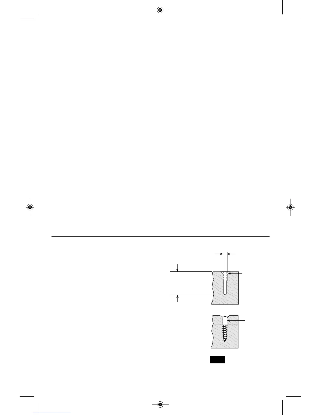
FIXATION À L’AIDE DE VIS
La procédure illustrée à la (Fig. 9) vous permettra de
fixer des matériaux ensemble à l’aide de votre outil
sans dénuder, fendre ni séparer le matériau.
Fixez d’abord les pièces ensemble à l’aide d’une bride,
et percez le premier trou aux 2/3 du diamètre de la vis.
Si le matériau est tendre, percez uniquement les 2/3 de
la longueur voulue. Si le matériau est dur, percez toute
la longueur.
Détachez ensuite les pièces et percez le deuxième trou
du même diamètre que la tige de la vis dans la
première pièce ou la pièce supérieure de bois.
En troisième lieu, si une vis à tête plate est employée,
fraisez le trou pour mettre la vis de niveau avec la
surface. Puis, exercez tout simplement une pression
uniforme en enfonçant la vis. Le trou de dégagement
de la tige de la vis dans la première pièce per met à la
tête de la vis de tirer les pièces fermement ensemble.
2. Percez le même
diamètre que la
tige de la vis.
3. Fraisez le
me
diamètre
que la tête
de la vis.
1. Percez les 2/3 du diamètre
et les 2/3 de la longueur de
la vis pour les matériaux
tendres, la longueur complète
pourles mariaux durs.
Vis
Exercez une légère
pression uniforme
en enfonçant les
vis.
FIXATION
À L’AIDE DE VIS
FIG. 9
BM 2609140642 05-09:BM 2609140642 05-09 5/19/09 10:16 AM Page 31

Related product manuals