EasyManua.ls Logo

Bosch DPH36652UC - Page 28

Bosch DPH36652UC
32 pages
Print Icon
To Next Page IconTo Next Page
To Next Page IconTo Next Page
To Previous Page IconTo Previous Page
To Previous Page IconTo Previous Page
Loading...
28
TABLA 2. DIRECTRICES DE INSTALACIÓN DEL TRABAJO DEL CONDUCTO
Por motivos de seguridad, la propagación guiada debe dar salida directamente al aire libre (no en un ático, debajo
de la casa , en el garaje o en cualquier espacio asociado). Hacer si que el conducto sea lo más corto y lo más
derecho posible.
Los montajes del conducto (los codos y transiciones) reducen la eficacia del flujo del aire.
Los codos y los giros a “S” no permiten una salida correcta del aire y por este motivo no se recomiendan.
Una longitud recta y corta del conducto a la entrada del aspirador remoto, ofrece una mejor salida.
La transición desde el conducto del aspirador íntegro o la transición del conducto remoto lo más cerca posible de
la ráfaga descendiente.
En el orden de preferencia, usar
1. 10" conducto redondo
2. 8" conducto redondo
3. 3-1/4" x 14" conducto
4. 7" conducto redondo
5. 3-1/4" “l0 de x el conducto
6. 6" conducto redondo
Los conductos redondos de metal flexible deben ser usados sólo cuando no hay ningún otro conducto encajado.
Limitar el uso en longitudes cortas y no aplastar cuando se hacen las esquinas.
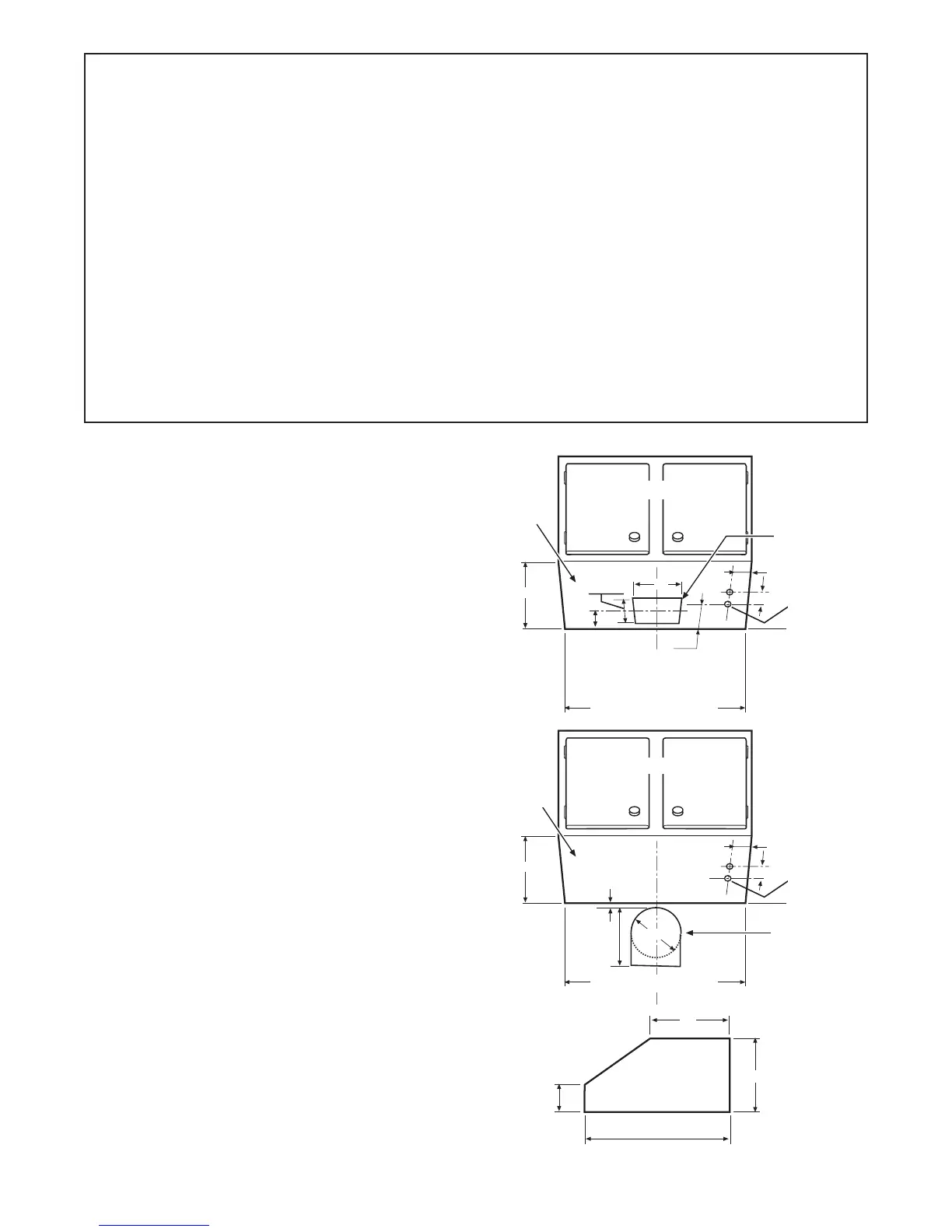
Después de haber escogido la opción de
ventilación
1. Preparar los corte de los conductos y de los
tubos, ver las figuras 1,2,3 así como
requerido.
12"
11"
3-9/16"
23-1/16"
1-7/8"
6-1/4"
12"
Hood Width
Rear
Wall
1-1/2" Dia. Holes
Vertical conduit
option
2-3/4"
Cabinet Front
10"
2-1/2"
4-15/16"
CL
Vertical
Discharge
Bottom of
Cabinet or
Soffit
1-7/8"
12"
Hood Width
Rear
Wall
1-1/2" Dia. Holes
Vertical conduit
option
2-3/4"
Cabinet Front
CL
Bottom of
Cabinet or
Soffit
Horizontal
Discharge
7/16"
7/16"
Ø 8 1/4"
Ø 8 1/4"
8 13/16"
Figura 3
Figura 1
Figura 2
Parte anterior del gabinete
Parte anterior del gabinete
fondo del
gabinete o
placa
Descarga
vertical
Orificios de 1-1/2” de
diámetro para la
opción de
evacuación vertical
Pared posterior
Pared posterior
anchura de la campana
Orificios de 1-1/2” de
diámetro para la
opción de
evacuación vertical
anchura de la campana
fondo del
gabinete o
placa
Descarga
horizontal

Other manuals for Bosch DPH36652UC

Related product manuals