EasyManua.ls Logo

Bpt YC/200 - SI;200 Entrance Selector

Bpt YC/200
25 pages
Print Icon
To Next Page IconTo Next Page
To Next Page IconTo Next Page
To Previous Page IconTo Previous Page
To Previous Page IconTo Previous Page
Loading...
E
SI/200
5
21
8
11
12
23
13
16
24
RS
E
F
BG
H
5
21
8
11
12
23
13
16
24
5
21
8
8A
11
12
23
13
16
24
1
2
4
5
6
1
2
A/200R(A/200N)
B
C
+B
5
21
8
8A
11
5
8
9
12
23
16
NO
C
NC
A
43,5
45
7,5
57
140
106
A
B
64,5
140
145
5
21
8
11
12
23
13
ON
SW1
OFF
5
21
8
11
12
23
13
16
24
RS
E
E
F
5
21
8
8A
11
12
23
13
16
24
B
SW2
16
24
1
2
1
2
4
5
G
6
H
SW
1
2
5
BPT S.p.A.
30020 Cinto Caomaggiore
Venezia - Italy
12.2000/2403-1644
SI/200
2
Residential systems using the uni
t
as a block selector.
Operating characteristics
Protection of any connections
installed and management of the
engaged” signal, irrespective o
f
whether the unit is used as a selecto
r
for several entry panels or as a block
selector in residential systems.
The protection mechanism is disa
-
bled under the following conditions:
- approx. 2 minutes after the call;
- when the handset is replaced
(SW1 jumper connected);
- permanently (SW2 jumper connec
-
ted).
The selector is equipped with an
amplifier which regenerates the cal
l
signal.
Possibility of connecting up to
three internal units to the same call.
Possibility of trading the origin o
f
an external call by means of differen
t
tones which correspond to two diffe
-
rent entry panels.
To enable this function, connect ter
-
minal 8A of SI/200 selector to termi
-
nal 8A on the power supplier installed
(A/200, A/241, etc.), figure 3.
In this case, connections cannot be
made for calls originating from inter
-
nal floor landings.
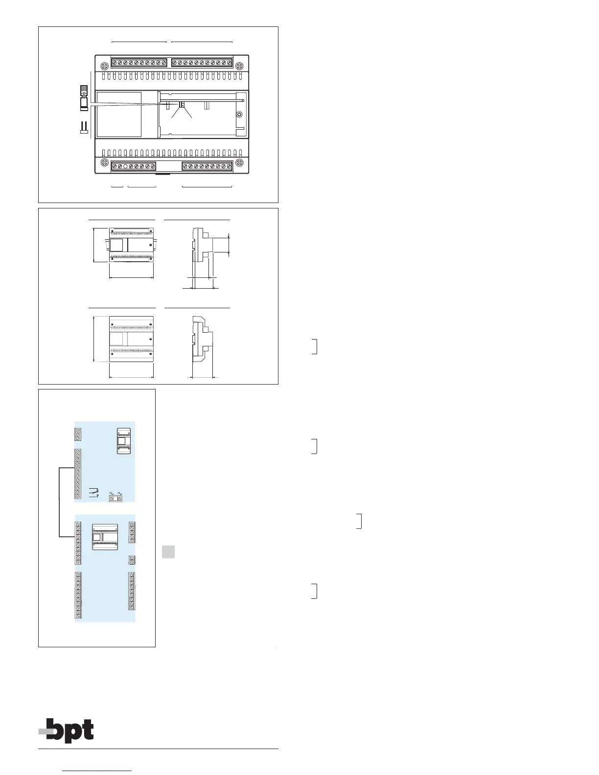
Function of each terminal, figure 1
Terminal block B (to power supplier or
preceding selector)
5 11V supply voltage
21 + to entry panel
8 call 1 common
8A call 2 common
11 audio to receiver
12 audio to entry panel
23 input 14V AC
13 door release solenoid
16 0V AC
24 engaged signal input
Terminal block E (to entry panel no. 1)
5 11V supply voltage
21 + to entry panel
8 call common
11 audio to receiver
12 audio to entry panel
23 output 14V AC
13 door release solenoid
16 0V AC
24 engaged signal output
RS reset
(
1
)
E audio enable
(
1
) Functions for combined (audio
and video entry systems) installa-
tions.
Terminal block F (to entry panel no. 2
or subsequent selector)
5 11V supply voltage
21 + to entry panel
8 call common
11 audio to receiver
12 audio to entry panel
23 output 14V AC
13 door release solenoid
16 0V AC
24 engaged signal output
Terminal block G (services)
1 call 1 input
2 call 2 input
4 engaged signal output (for resi
-
dential systems)
5 general reset
6 enable output
Terminal block H (services)
1 call 1 output
2 call 2 output
1
GB
INSTALLATION
INSTRUCTIONS
SI/200 ENTRANCE SELECTOR
This unit permits the selection of two
entry panels and is configured to
create the following systems:
Single or multi-family systems with
several entrances using the same
number of selectors as there are
entry panels minus one.
SW jumpers functions, figure 1
(in ON position)
SW1 resetting of engaged entry
panels by replacing the hand-
set.
SW2 deactivation of call protection
and engaged signal.
NOTE. The selector is supplied with
SW1 jumper wired in.
When A/241 power supplier are
used (1+n installations), the SW1
jumper must be connected, figure
1.
Technical features
Supply voltage: 11 V DC.
Current demand: 45 mA max. (5
mA quiescent).
Working temperature range: from
0 °C to +35 °C.
Dimensions: 8 DIN units, low profi-
le module, figure 2.
The unit can be installed without
terminal covers into boxes provi-
ded with DIN rail (EN 50022).
Dimensions are shown in figure
2A.
It can also be surface mounted,
using the DIN rail supplied, but fit-
ted with terminal covers.
Dimensions are shown in figure
2B.

Other manuals for Bpt YC/200

Related product manuals