EasyManua.ls Logo

BROMMA OSR45 - Page 10

Default Icon
12 pages
Print Icon
To Next Page IconTo Next Page
To Next Page IconTo Next Page
To Previous Page IconTo Previous Page
To Previous Page IconTo Previous Page
Loading...
10
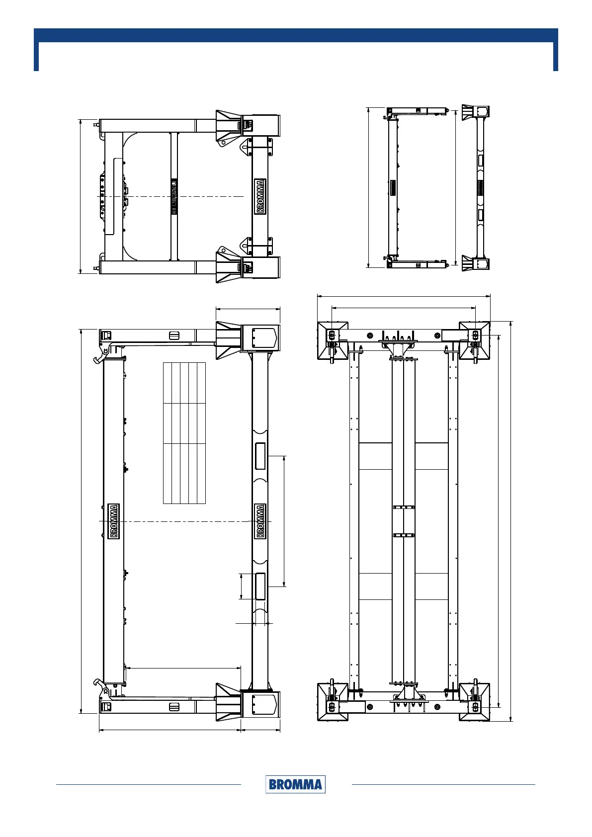
DIMENSIONAL DRAWINGS – OSR45
Dimensional drawings of OSR45. We reserve the right to change the design and technical data without prior notice.
© 2016 Bromma – All rights reserved.
400
1
4
0
2050
6
1
6
B
6042
1
0
0
9
2428
5852
6289
2
7
2
1
2
2
5
8
A
6042(20' ISO)
(45' ISO) 13699
(40' ISO) 12174
5852(20' ISO)
(45' ISO) 13509
(40' ISO) 11984
OSR45 Height
A B
1.8 M 1808 2231
2.25 M 2258 2681
2.5 M 2508 2931
2.7 M
2708 3131