EasyManua.ls Logo

Bronpi Agatha - Page 30

Bronpi Agatha
Print Icon
To Next Page IconTo Next Page
To Next Page IconTo Next Page
To Previous Page IconTo Previous Page
To Previous Page IconTo Previous Page
Loading...
29
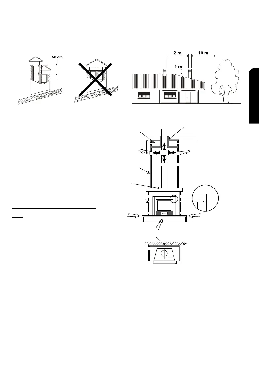
The flue must be away from flammable or combustible materials through an appropriate insulation or an air chamber. Inside the pipes, it is
forbidden the use of air abduction channels. It is also prohibited to do mobile or fixed openings for connecting other different equipments.
The smoke duct must be staunchness set to the equipment and it can have a maximum inclination of 45° whereby excessive deposits of
condensation produced in the initial stages of ignition and / or excessive soot formation is avoided. Moreover, it avoids the slowing down of
the smoke when it comes out.
The lack of sealing of the connection may cause the malfunction of the equipment.
The internal diameter of the connection pipe should correspond to the external diameter of the chimney of the equipment.
In drawing D12 you can see the requirements for a correct installation.
D12
5.4 NATURAL CONVECTION FOR INSERTS
When the inserts Neva and Damasco are installed
in a facing or in an old chimney it is essential
that the space between the top and the sides of
the equipment and the fireproof material of the
hood (which blocks the base of the chimney)
are constantly ventilated. For this reason, it is
necessary to keep an fresh air entry on the bottom
of the facing and an exit on the top (hot air exit)
on the hood. The aim is to improve the operation
because there is a natural convection circuit (see
drawing D13).
The measures that need to be respected are:
The bottom side (cold air intake) should have
a total minimal surface of 550 cm2.
The upper side (hot air outlet) should have a
total minimal surface of 500 cm2.
It is important to clarify that this natural convection
is completely independent from the primary air
intake.
5.5 CHIMNEY COWL
The chimney draft also depends on the chimney cowl. Therefore, in case of an artisanal chimney cowl, it is indispensable that the exit section
is twice the inside section of the smoke duct. The smoke exit will be assured even in presence or air (see drawing D14).
The chimney cowl must comply with the following requirements:
It must have the same interior section of the chimney.
It must have an usable exit section that is two times the one of the interior of the chimney.
It must be constructed so that the rain, snow or any other objet do not enter inside.
It must be easily accessible in order to do servicing and cleaning tasks.
D38
CO
NDU
C
T
O
METALI
CO
MAXIMA INCLINACION 45º
ESPACIO ENTRE EN TUBO Y
EL CONDUCTO SELLADO
CAMARA DE DESCOMPRESION
REJILLA
REJILLA
AISLAMIENTO LANA DE ROCA REJILLA SALIDA AIRE CONVECCION
PROTEGER LAS PARTES
I
NTERNAS DE LA MADERA
ESPACIO ENTRE EL REVESTIMENTO Y EL INSER
T
AISLAMIENTO LANA DE ROCA
ENTRADA AIRE FRIO
ENTRADA AIRE FRIO
ENTRADA AIRE FRIO
AISLAMIENTO LANA DE ROCA
PARED
50 cm
Metallic channel
maximum inclination 45º
Decompression chamber
Space between the pipe and
the sealed channel
Grate
Grate
Exit grate of the convection air
Rock wool insulation
Rock wool insulation
Protect the inner
walls of the wook
Space between the cladding and the insert
Cold air entry
Cold air entry
Cold air entry
Rock wool insulation
Wall
5 mm
5 cm
D13
INSTALLATION, OPERATING AND SERVICING INSTRUCTIONS RADIOFREQUENCY SERIES
EN

Table of Contents

Related product manuals