EasyManua.ls Logo

Bryant 558F.36.1 - Page 7

Bryant 558F.36.1
20 pages
Print Icon
To Next Page IconTo Next Page
To Next Page IconTo Next Page
To Previous Page IconTo Previous Page
To Previous Page IconTo Previous Page
Loading...
—7—
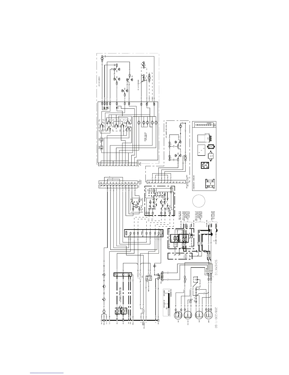
Fig. 5 — Schematic/Component Arrangement; 558F060; 208/230-1-60

Related product manuals