EasyManua.ls Logo

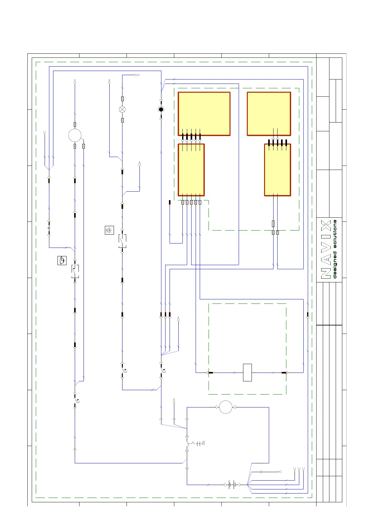
buster M1 - Appendix 4, Wiring Diagrams; Bilaga 4, Kopplingsscheman; Liite 4, Kytkentäkaaviot; Vedlegg 4, Koblingsskjemaer

buster M1
Print Icon
To Next Page IconTo Next Page
To Next Page IconTo Next Page
To Previous Page IconTo Previous Page
To Previous Page IconTo Previous Page
Loading...
Project rev.
Sheet rev.
Drawing by
Date
Modified by
Description
A
B
C
D
E
F
1
2
3
4
5 6 7 8
Date of modification
Sheet
Loc
HL
/
Project ID
Boat
Boat model
Product code
Copyright by
Sub-product code
Title
1
2
3
4
5 6 7 8
A
B
C
D
E
F
2
MODULE SMALL
2017
Buster
A1: INTRODUCED DRAWING.
TuM
21.12.2016
TuM
1
A
21.12.2016
1
DIAGRAM
I
0
M
/2.E1
/2.E5
/2.D1
/2.D5
/2.C1
/1.C8
/1.A8
M
/1.F1
/2.C1
/2.C5
/1.F1
1
2
4487
-M_S1
275A/1250A
MAIN SWITCH
-M_S1d
-M_S1c
-M_S1b
1/1
25/10
-M_S1a
-G1
BATTERY
1/1
203
-G1a
1/1
204
-G1b
-G1c
ENGINE
-M1
1
2
88-05-A1B14-A00
-F.1
5A
NAV LT
1
2
88-05-A1B14-A00
-F.2
5A
BILGE PUMP
1
2
88-15-A1B14-A00
-F.3
15A
EXTRA
1
-F1
1
-F2
1
-F3
2
-F1
2
-F2
2
-F3
INPUT+
TRIM-
6/8
2635810
-X1
6/8
2634810
-X.1
5/8
2635810
-X1
5/8
2634810
-X.1
3/8
-X1
4/8
7/8
2635810
3
2
V2D2UUCC
-S.1
2/10
-S1
3/10
-S1
+10
-9
V2D2UUCC
-S.1
+10/10
-S1
-9/10
-S1
4/4
2634410
-X.2a
2/4
2634410
-X.2a
4/4
2635410
-X2a
2/4
2635410
-X2a
1/1
2634110
-X.2b
1/1
2635110
-X2b
3/8
-X.1
4/8
7/8
2634810
EXTRA
INPUT-
3
2
13054
-S.2
2/8
-S2
3/8
-S2
1/4
2634410
-X.2a
3/4
2634410
-X.2a
3/4
2635410
-X2a
1/4
2635410
-X2a
NAV_LT_A+
INPUT-
INPUT-
2/8
2634810
-X.1
2/8
2635810
-X1
BILGE
PUMP
-M.2
-M2-M2
-M2
INPUT-
8/8
2635810
-X1
8/8
2634810
-X.1
+
-
AS212
-A.3
12V DC
+
-A3
-
-A3
--AA55
NMEA2000
POWER
--AA..44
NMEA2000
CONNECTOR
20740 M12 Power Cable
-A4
-H_F.1
5A
--AA77
BUSTER Q
--AA..66
NMEA2000
CONNECTOR
20743 M12 CABLE
1/5
-A6
2/5
3/5
4/5
5/5
-A8
IGNITION
2/2
2635210
-X9
1/2
2635210
-X9
-A.9
FUEL SENSOR
2/2
2634210
-X.9
1/2
2634210
-X.9
NAV LT
MAST
-H.3
-H3 -H3
1/8
2634810
-X.1
1/8
2635810
-X1
NAV_LT_A+
INPUT-
INPUT-
RED
BLACK
PIN 1
PIN 2
PIN 3
PIN 4
PIN 5
PIN 1
PIN 2
PIN 3
PIN 4
PIN 5
PIN 1
PIN 2
PIN 3
PIN 4
PIN 5
GREY
RED
BLACK
WHITE
GREEN
IINNCCLLUUDDEEDD IINN TTHHEE MMOODDEELLSS::
SS,, MM,, LL,, XX
IINNCCLLUUDDEEDD IINN TTHHEE MMOODDEELLSS::
MM,, LL,, XX
MODEL L: SENSOR TYPE S3-A200 (22044)
MODEL X: SENSOR TYPE S3-A225 (11465)
IINNCCLLUUDDEEDD IINN TTHHEE MMOODDEELLSS::
LL,, XX
ENG+
ENG-
25
RED
BATTERY+
1.5
WHITE
DIRECT+
2.5
RED
INPUT+
1.5
WHITE
BILGE_P_C++
1.5
RED
NAV_LT_A++
1.5
WHITE
1.5
BROWN
BILGE_P_1+
1.5
BLACK
INPUT-
1.5
WHITE
1
RED
BILGE_P_1+
1
BLACK
INPUT-
1.5
RED
1.5
RED
1.5
RED
1
BLACK
INPUT-
1.5
BLACK
INPUT-
2.5
BLACK
INPUT-
1.5
BROWN
1.5
BROWN
1.5
WHITE
BILGE_P_C++
1.5
WHITE
1.5
BLACK
1.5
RED
INPUT+
2.5
BLACK
INPUT-
1.5
GREEN/BLACK
1.5
GREEN/BLACK
EXTRA
1.5
GREY/RED
EXTRA
1.5
ORANGE
EXTRA
1.5
GREEN/BLACK
EXTRA
1.5
GREEN/BLACK
2.5
BLACK
INPUT-
2.5
BLACK
INPUT-
2.5
BLACK
INPUT-
1.5
WHITE/YELLOW
IGN
1.5
WHITE/YELLOW
IGN
1.5
GREY/RED
EXTRA
1.5
BLACK
INPUT-
1.5
BLACK
INPUT-
1.5
ORANGE
EXTRA
1.5
GREY/RED
EXTRA
1.5
ORANGE
EXTRA
1.5
BROWN
FUEL_H+
1.5
BLUE
FUEL_H-
1.5
BROWN
FUEL_H+
1.5
BLUE
FUEL_H-
FUEL_H+
FUEL_H-
BLUE
BLACK
1
RED
NAV_LT_A+
1
RED
1
RED
1
RED
NAV_LT_A+
1.5
BLACK
1.5
BLACK
2.5
BLACK
1
BLACK
1
BLACK
EXTRA
10. Kytkentäkaaviot / Kopplingsscheman / Koblingsskjemaer / Wiring Diagrams
Buster S / M / L

Table of Contents

Related product manuals