EasyManua.ls Logo

Cafe CXE - Page 17

Cafe CXE
141 pages
Print Icon
To Next Page IconTo Next Page
To Next Page IconTo Next Page
To Previous Page IconTo Previous Page
To Previous Page IconTo Previous Page
Loading...
16 49-1000329 Rev. 7
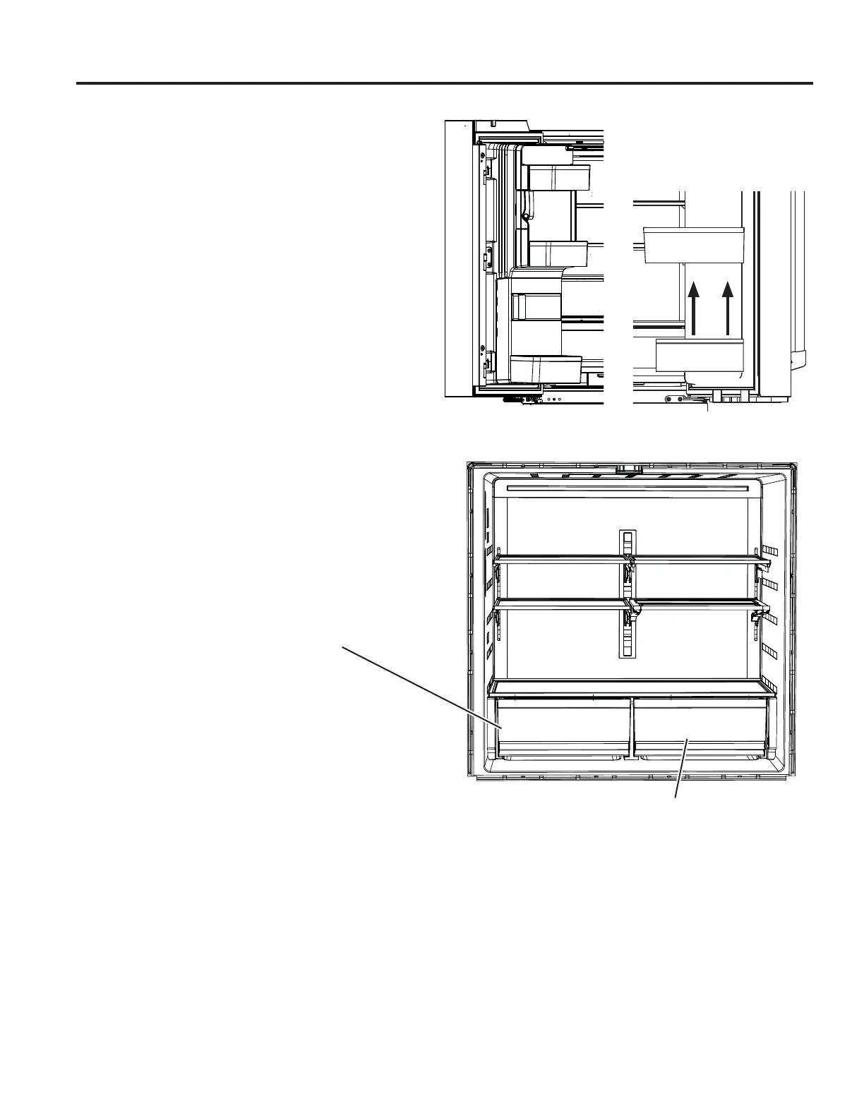
Refrigerator Storage Options
Door Bins
Fixed bins can easily be carried from refrigerator to work
area.
To remove: Lift bin straight up, then pull out. The door
bins are not interchangeable, note the location upon
removal and replace the bin in its proper location.
Sealed and Vented Pans
.HHSIUXLWVDQGYHJHWDEOHVRUJDQL]HGLQVHSDUDWH
compartments for easy access.
Excess water that may accumulate in the bottom of the
drawers or under the drawers should be wiped dry.
Sealed pan with
Humidity Control System
prolongs leafy green
vegetable preservation by
maintaining humidity in
the pan.
Vented pan for storing fruits
and vegetables
USING THE REFRIGERATOR: Refrigerator Storage Options

Related product manuals