EasyManua.ls Logo

Calorex AW550 - Page 16

Calorex AW550
38 pages
Print Icon
To Next Page IconTo Next Page
To Next Page IconTo Next Page
To Previous Page IconTo Previous Page
To Previous Page IconTo Previous Page
Loading...
Page 15 SD092750 ISSUE 34
(N/O) CLOSES ON
WATER TEMP RISE
(COM) 8
(COM) 9
5 (N/O)
6 (N/O)
1 (N/C)
2 (N/C)
3 (N/C)
5
3
1
6
(N/O)
4
(N/O)
2
(N/O)
A1 A2
1 3(4)
(N/C)
L
H
(N/O)
C
(COM)
DEFROST STAT
(BREAKS TO 'H'
ON TEMP FALLING)
ALL CONTACTS SHOWN IN DE-ENERGISED STATE BUT WITH REFRIGERATION CIRCUIT FULLY CHARGED
WHERE CONTACTS ARE MARKED (N/O) OR (N/C) ON CIRCUIT DIAGRAM ABOVE CONDITIONS APPLY
3 (N/O)
CONTACTOR
DEFROST
LAMP
POOL STAT
A B
(COM) 7
4 (N/O)
RELAY
2 (N/C)
(COM) 1
AIR STAT
HP SWITCH
(N/C) BREAKS ON
PRESSURE RISI NG
LP SWITCH
(N/C) BREAKS ON
PRESSURE FALLI NG
C
H
C
L
RCU MODEL
CONTROL UNIT
FUSE
RCU100
RCU200/300
5A
7A
COMPRESSOR
C
S
R
DELAY
TIMER
HUMIDISTAT
SOLENOID COIL
INTER
LOCK
FAULT
LAMP
FAN FUSE
FAN
FAN CAP
MAINS LAMP
N
SOLENOID COIL
SOLENOID COIL
L N
RCU UNIT
L
N
RCU CONTROL UNIT
RCU FUSE
S S OVERLOAD
(IF FITTED)
FLOW SWITCH
L3 L2 L1
SOFT START (IF FITTED)
B
A
C
95
96
CONTACTOR
O/LOAD
L1
L2
L3
11
14
CONTROL FUSES
PHASE ROTATION
D273350 D171651
POOL STAT N/O CLOSES
ON WATER TEMP RISE
LP SWITCH
(BREAKS TO 'H' ON
PRESSURE FALLING)
HP SWITCH
(BREAKS TO 'L' ON
PRESSURE RISING)
L H
C
(N/O) (N/C)
(COM)
L
H
C
(N/O)
(N/C)
(COM)
(COM)
8
(COM)
9
5 (N/O)
6 (N/O)
1 (N/C)
2 (N/C)
3 (N/C)
A B
(COM)
7
4 (N/O)
RELAY
1 (COM)
(N/C) 2
(N/O) 3
L1
L2
L3
TIMER
DELAY
DEFROST
STST
HUMIDISTAT
SOFT START
THERMAL O/LOAD
AND LIGHT
IF FITTED
FLOW SWITCH
DEFROST
LIGHT
INTERLOCK
TERMINALS
FAN O/LOAD
FUSES
CONTACTORS O/LOADS
FAN
COMPRESSOR
HEATER
SOLENOID COIL
1 3(4)
FAULT
LIGHT
FAN
AUX
O/LOAD
COMPRESSOR
CONTROL FUSE
MAINS LIGHT
L2 L1
L1 L2
RCU UNIT
L1
RCU CONTROL UNIT
SOLENOID COIL
AIR
STAT
L3
N
COMP AUX
( NC )
COMP AUX
(NO)
SOLENOID COIL
(NO)
(NO)
(NO)
(NO)
(NO)
(NO)
3
1
5
1
3
5 6
4
2
6
4
2
FUSE SIZES
TMBLK No. 10 11,12,13 14,15,16
FUSE 3A 3A 16A
19
7A
MACHINE
OVERLOAD SETTING
1400
1800
COMPRESSOR FAN FAN BRHF
7.6A
9.2A
1.1A
1.1A
1.2A
1.2A
SOFT
START
IF
FITTED
C
B
A
D
FUSE
D159651
(N/O)
11 (COM)
L3
L2
L1
PHASE
ROTATION
14
13
(COM) 8
(COM) 9
5 (N/O)
6 (N/O)
1 (N/C)
2 (N/C)
3 (N/C)
A B
(COM) 7
4 (N/O)
RELAY
1 (COM)
(N/C)
2
(N/O) 3
B
A
L3
L2
L1
TIMER
DELAY
DEFROST
STAT
HUMIDISTAT
THERMAL
O/LOAD
FAULT
LIGHT IF
DEFROST
LIGHT
INTERLOCK TERMINALS
CONTACTORS
FAN
COMPRESSOR
SUMP HEATER(S)
POOL
STAT
COIL D
1 2
FAULT
LIGHT
FAN
MCB
COMPRESSOR
MAINS LIGHT
L2 L1
L1 L2
RCU UNIT
L1
RCU CONTROL UNIT
SOLENOID COIL
AIR
STAT
L3
N
SOLENOID
3(4)
VALVE
MCB ALARM
SOLENOID
VALVE
COIL C
SOFT START
FITTED
&
STARTER OR
FLOW SWITCH
CONTACTOR
INTERLOCK
TERMINALS
STANDBY
RUN
STANDBY
SWITCH
FAN
COMPRESSOR
COMP
AUX
NC
COMP
AUX
NO
SOLENOID
VALVE
COIL E
MCBS
ALARM
CONTROL MCB
RCU MCB
AUX
MCB CONTACTS / MCB ALARM CONTACTS / MCB
AUX CONTACTS SHOWN WITH CIRCUIT BREAKER
MANUALLY SWITCHED TO THE ON CONDITION.
ALL OTHER CONTACTS SHOWN IN
DE-ENERGISED STATE BUT WITH
REFRIGERATION CIRCUIT FULLY CHARGED.
WHERE CONTACTS ARE MARKED (N/O) OR (N/C)
ON CIRCUIT DIAGRAM ABOVE CONDITIONS
APPLY.
U
V
W
9
8
7
6
L
C
N/C
96
95
95
96
N/C
N/C
N/C
(COM) 2
(N/O) 1
COMPRESSOR
PROTECTOR
HP SWITCH
(BREAKS TO 'L' ON
PRESSURE RISING)
LP SWITCH
(BREAKS TO 'H' ON
PRESSURE FALLING)
C
(COM)
C
(COM)
H
(N/C)
H
(N/O)
(N/O)
L
(N/C)
L
1
3
5
6
(N/C)
4
(N/C)
2
(N/C)
53
54 22
21
A1
A1A2
A2
6(N/O)
6(N/O)
4(N/O)
4(N/O)
2(N/O)
2(N/O)2 (N/C)
6 (N/C)
4 (N/C)
4 (N/C)
2 (N/C)
6 (N/C)5
5 5
5
3
33
3
1 1
11
14
DESCRIPTION
DEVICE
TRIPPING
CURRENT
DEVICE
SETTING
VALUE
COMPRESSOR
MCB
FAN MCB
28.37 AMPS 23.64 AMPS
3.36 AMPS 2.8 AMPS
'F'FAN MCB 3.89 AMPS 3.2 AMPS
SOFT
START
IF
FITTED
FUSE
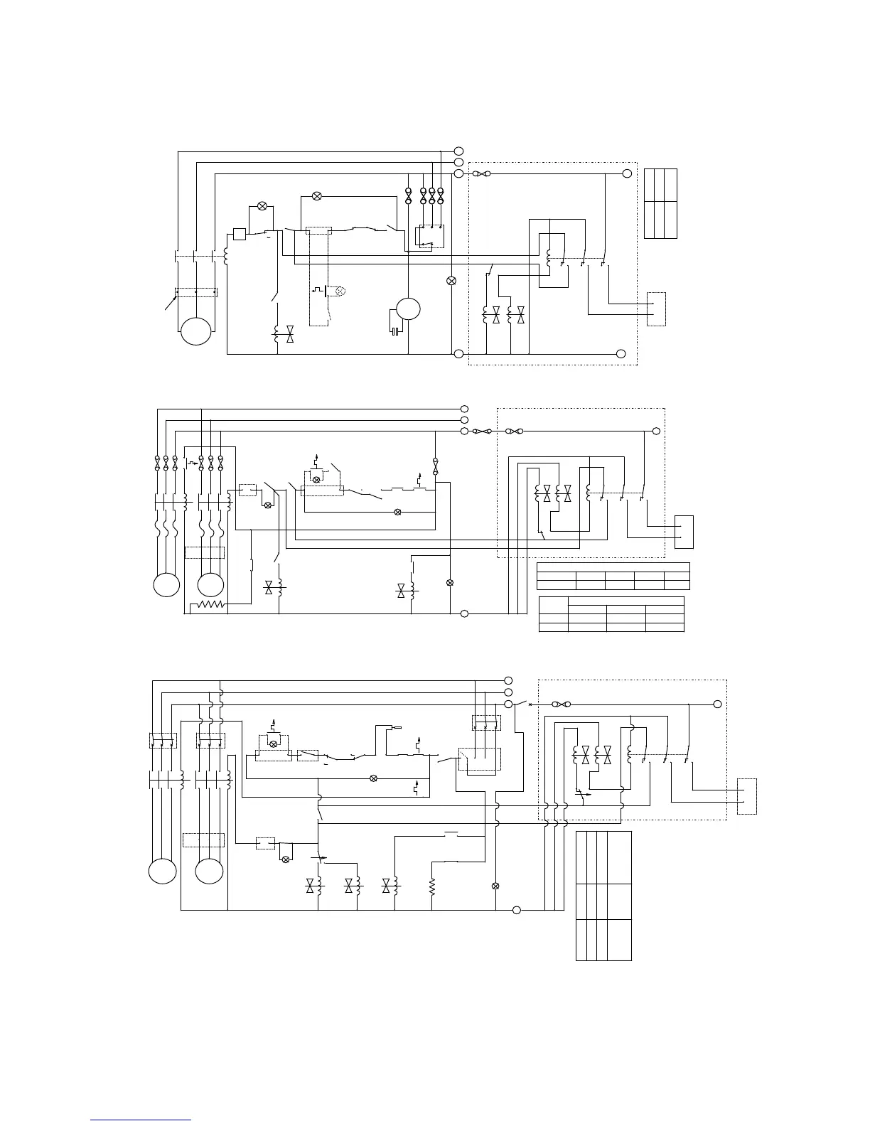
ELECTRICAL CIRCUIT DIAGRAM
AC 1200 THREE PHASE 400V 50Hz (3 ~ N)
ELECTRICAL CIRCUIT DIAGRAM
AC 4000 THREE PHASE 400V 50Hz (3 ~ N)
ELECTRICAL CIRCUIT DIAGRAM
AC 14/1800 THREE PHASE 400V 50Hz (3 ~ N)