EasyManua.ls Logo

Camcorp Pulse-Jet - Page 43

Default Icon
55 pages
Print Icon
To Next Page IconTo Next Page
To Next Page IconTo Next Page
To Previous Page IconTo Previous Page
To Previous Page IconTo Previous Page
Loading...
Still need help? Please feel free to contact one of our customer service representatives at
219-879-8000 or visit us on the web at www.dwyer-inst.com or www.dust-controls.com.
Again, we thank you for selecting the Dwyer DCT1000.
8-1/4
[209.55]
8-3/4
[233.25]
1-13/16
[46.04]
1/16
[1.59]
2-3/4
[69.85]
UP
DOWN
SELECT
RUN
ALARM
RESET
MANUAL
OVERRIDE
PROCESS {IN 0}
LAST OUTPUT
TIME OFF (SEC)
TIME ON (MSEC)
HIGH LIMIT
LOW LIMIT
HIGH ALARM
LOW ALARM
CYCLE DELAY (MIN)
DOWN TIME CYCLES
(MIN)
AUTO ALARM RESET
(SEC)
6-1/4
[158.75]
6-7/8
[174.62]
HIGH LOW
LIMIT COM LIMIT
ALARM MAN DT ALARM
COM MODE OVR CLN RESET COM
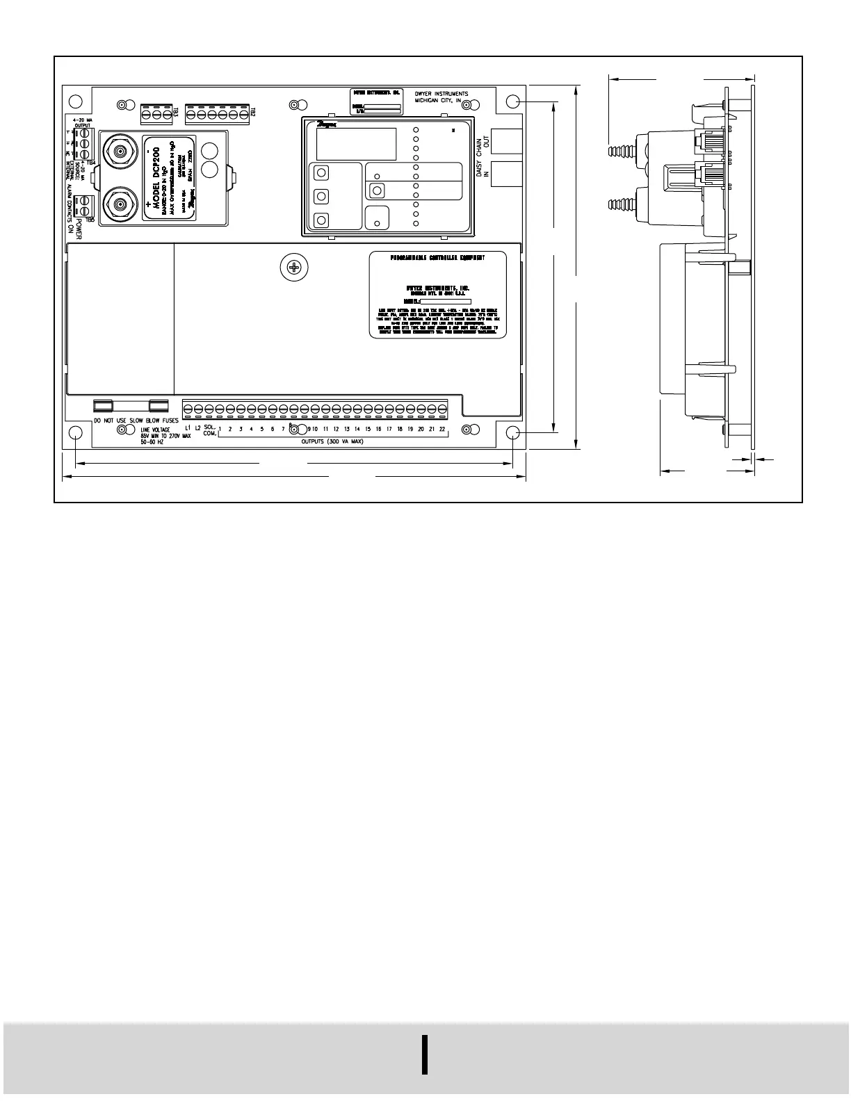
Figure 2 – Dimensional Specifications for the DCT1000
(shown with optional module DCP200)
DWYER INSTRUMENTS, INC.
P.O. BOX 373 • MICHIGAN CITY, INDIANA 46361 U.S.A.
Phone: 219/879-8000 www.dwyer-inst.com
Fax: 219/872-9057 e-mail: info@dwyer-inst.com
Lit-by-Fax: 888/891-4963