EasyManua.ls Logo

Candy CDIM 5115 - Page 63

Candy CDIM 5115
Print Icon
To Next Page IconTo Next Page
To Next Page IconTo Next Page
To Previous Page IconTo Previous Page
To Previous Page IconTo Previous Page
Loading...
63
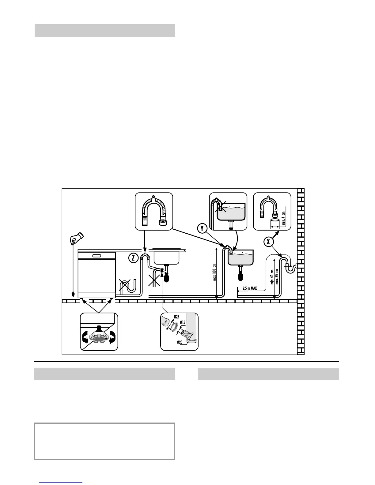
Raccordement à la vidange
Pour la vidange, introduire le tuyau dans
l'installation de vidange, en prenant soin
de ne pas le plier car l'écoulement des
eaux s'en trouverait perturbé (fig. 4).
Le tuyau de vidange fixe doit avoir au
moins un diamètre intérieur de 4 cm et
doit être placé à une hauteur minimum
de 40 cm.
Pour éviter les odeurs, nous
recommandons de prévoir un siphon
(fig. 4X).
Si nécessaire il est possible de rallonger
le tube de vidange jusqu'à 2,5 mètres
en le maintenant cependant à une
hauteur maximum de 85 cm du sol.
Cette rallonge de tube est disponible
auprès du service après-vente.
L'extrémité recourbée du tuyau de
vidange peut être accrochée au bord
d'un évier, mais ne doit pas rester
immergée, pour éviter le siphonnage de
l'appareil pendant le programme de
lavage (fig. 4Y).
En cas d'installation sous un dessus
continu, le coude doit être fixé
immédiatement sous le dessus au point
le plus haut possible (fig. 4Z).
Pendant l'installation de la machine,
contrôler que les tubes de remplissage
et de vidange ne sont pas pliés.
Ouverture de la porte
Si la porte s'ouvre durant le fonctionnement
de l'appareil, une sécurité électrique
permet d'interrompre automatiquement les
fonctions préétablies.
IMPORTANT
Pour une utilisation correcte ne pas
ouvrir la porte du lave-vaisselle
pendant son fonctionnement.
Fermeture de la porte
Mettre les paniers.
Vérifier que les plats ou casseroles ne
gênent pas les rampes avants et s'assurer
que celles-ci tournent librement.
Fermer la porte et la bloquer avec force.

Related product manuals