EasyManua.ls Logo

Caple Di631 - Aesthetic Door Panel Dimensions

Caple Di631
48 pages
Print Icon
To Next Page IconTo Next Page
To Next Page IconTo Next Page
To Previous Page IconTo Previous Page
To Previous Page IconTo Previous Page
Loading...
Instruction manual DI631
34
Please keep this instruction manual for future reference
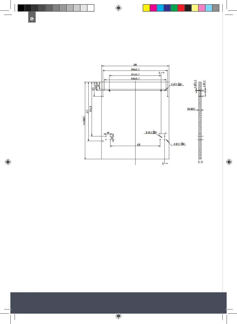
AESTHETIC DOOR PANEL DIMENSIONS AND INSTALLATION
The aesthetic door panel could be processed according to the Figure 3.
Figure 3
The aesthetic
door panel should
be processed in
accordance with the
illustrated dimensions.
(Unit: mm)
Please carefully read the installation instruction.
Illustrations of cabinet dimensions and installation position of the dishwasher
Preparations should be made before moving the dishwasher to the installation place.
Choose a place near the sink to facilitate the installation of inlet and drain hoses
(see figure 1).
If dishwasher is installed at the corner of the cabinet, there should be some space
(illustrated in figure 2) when the door is opened.
2
1
Minimum space when
the door is opened
【】Figure2
Cabinet dimensions
【】Fig ure1
Cabinet
Dishwasher
Door of
dishwasher
Minimum space of 50mm
1
The aesthetic wooden panel could be processed according to the Figure 3.
The aesthetic panel should
be processedin accordance
with the illustrated dimensions
Figure3
Aesthetic panel's dimensions and installation
Less than 5mm
between the top
of dishwasher and
cabinet and the
outer door aligned
to cabinet.
90 °
90 °
600 mm
820mm
100
580mm
80
Space between cabinet
bottom and floor
Electrical, drain and
water supply line
entrances
(Unit: mm)
19
Di631 Intergrated Dishwasher Instruction Manual .indd 34Di631 Intergrated Dishwasher Instruction Manual .indd 34 12/08/2020 10:0912/08/2020 10:09

Related product manuals