EasyManua.ls Logo

Caple DI632 - Page 37

Caple DI632
48 pages
Print Icon
To Next Page IconTo Next Page
To Next Page IconTo Next Page
To Previous Page IconTo Previous Page
To Previous Page IconTo Previous Page
Loading...
Instruction manual DI632 37
Please keep this instruction manual for future reference
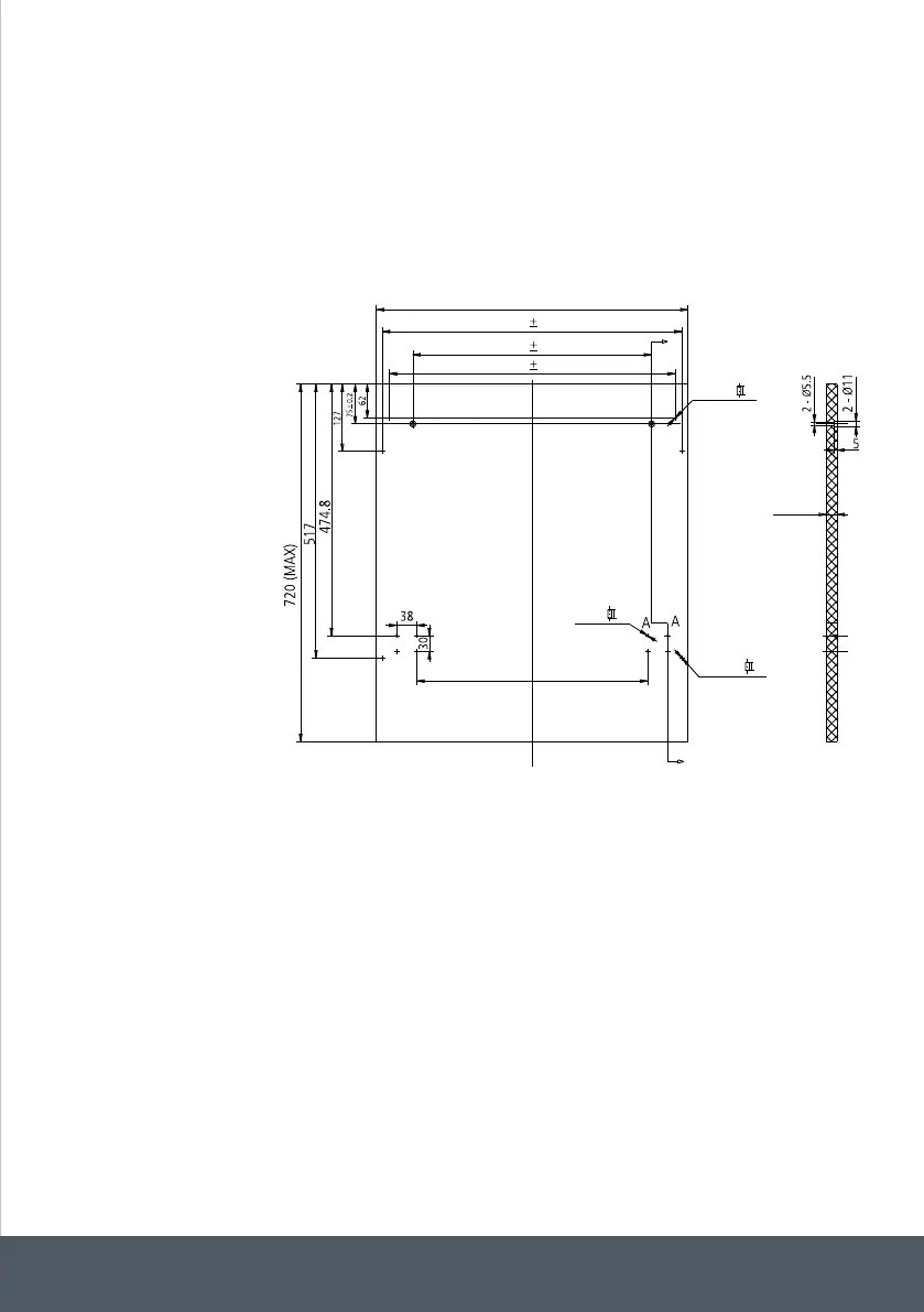
AESTHETIC DOOR PANEL DIMENSIONS AND INSTALLATION
The aesthetic door panel could be processed according to the Figure 3.
FIGURE 3
The aesthetic
door panel should
be processed in
accordance with the
illustrated dimensions.
(Unit: mm)
589
A
20 (MAX)
2 - Ø2( 8)
4 - Ø2( 8)
8 - Ø2( 8)
A-A
A
436
566 0.2
451 0.2
450 0.2

Related product manuals