EasyManua.ls Logo

Carrier 38YDB - Heat Pump Model 037 Wiring Diagrams; Dual Capacity Schematic Diagram (037); Dual Capacity Connection Diagram (037); Component Arrangement (037)

Carrier 38YDB
4 pages
Print Icon
To Next Page IconTo Next Page
To Next Page IconTo Next Page
To Previous Page IconTo Previous Page
To Previous Page IconTo Previous Page
Loading...
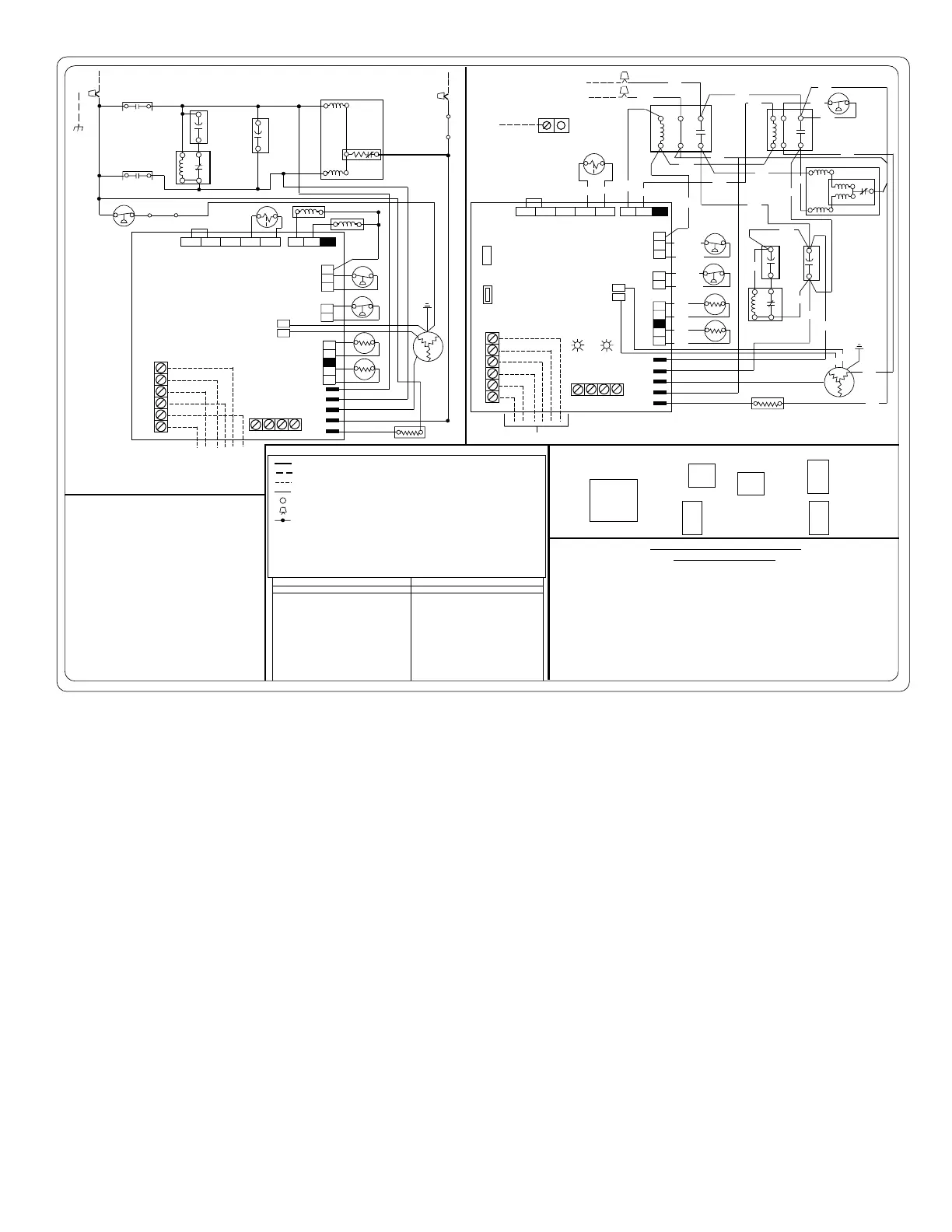
Fig. 2Wiring Diagram037
A01380
SCHEMATIC DIAGRAM (LADDER FORM)
OFM
CCH
TO INDOOR UNIT
CONNECTION DIAGRAM
-t°
RVS
NOTES:
1. Compressor furnished with inherent thermal protection.
2. To be wired in accordance with National Electric Code
and local codes.
3. Outdoor unit control requires a minimum of 27 VA,
24 VAC control power.
4. Use copper conductors only. use conductors suitable
for at least 75°C (167°F).
5. If indoor section has a transformer with a grounded
secondary, connect the grounded side to "C".
6. If any of the original wire, as supplied, must be replaced,
use the same or equivalent wire.
7. Check all electrical connections inside control box for
tightness.
8. Do not attempt to operate unit until service valves have
been opened (back seated)
9. Must use thermostat listed in pre-sale literature.
10.Compressor windings shown for 2 cylinder operation.
For 1 cylinder operation reverse R and S markings.
FUNCTION LIGHT (STATUS)
DEFINITION
CODE ON UNIT
NO DEMAND / STAND BY
LOW-CAPACITY OPERATION
HIGH-CAPACITY OPERATION
OUTDOOR THERMISTOR FAILURE
COIL THERMISTOR FAILURE
THERMISTOR OUT OF RANGE
LOW PRESSURE SWITCH TRIP
HIGH PRESSURE SWITCH TRIP
COMPRESSOR VC/VH TRIP
BOARD FAILURE
326365-101 REV. A
-LEGEND-
C
O
W
Y
2
Y
1
R
A B C D
VH
L 2
ODF
CCH
OAT
-t°
LOHI
CL
CH
D C C
H
C
C L
21
11
COMP
CAP
COMP
L2
CH
21
11
L1
23
23
CH
OCT
-t°
LPS
HPS
OAT
-t°
LOHI
TO INDOOR UNIT
CCH
RED
BRN
BLU/PNK
BLU/PNK
YEL/PNK
YEL/PNK
CONSTANT FLASH / NO PAUSE
ONE FLASH W/ PAUSE
TWO FLASHES W/ PAUSE
THREE FLASHES W/ PAUSE
FOUR FLASHES W/ PAUSE
ALT 3 & 4
ALT 5 & 1
ALT 5 & 2
ALT 6
CONSTANT LIGHT NO PAUSE / NO FLASH
BRN
BRN
BLK
BLK
BLK
ORN
RVS
ORN
RED
BLU
CH
11
2123
23
YEL
BLK
BRN
BLK
C L
11
21
BLU
H
C
START
COMP
COMP
RELAY
BRN
CAP
BLU
BLU
L2
L1
EQUIP GND
DUAL CAPACITY
DUAL CAPACITY
A B C D
BLU
BRN
BLK
EQUIP
GND
VC
YEL
BRN
COMM STATUS
RVSSEVHP/AC C
OCT
DUAL CAPACITY
CONTROL
COMP
CAP
START
CAP
CH
CL
START
RELAY
COMPONENT ARRANGEMENT
YEL
VPS
UNIT OPERATION/SEE UNIT INSTALLATION
INSTRUCTIONS FOR DETAILS
1 MINUTE TIME DELAY -
WHEN CHANGING FROM LOW TO HIGH, OR HIGH TO LOW, THERE IS A 1 MINUTE TIME DELAY. NOTE,
DURING CAPACITY CHANGE DELAY THE OUTDOOR FAN WILL REMAIN RUNNING.
CRANKCASE HEATER -
OPERATES DURING OFF CYCLE.
DEFROST TIME SELECTION -
(SHOWN AS DT ON BOARD) THE DEFROST INTERVAL TIME CAN BE FIELD-SELECTED, DEPENDENT
UPON LOCAL/GEOGRAPHIC REQUIREMENTS. IT IS FACTORY SET AT 90 MINUTES AND CAN BE CHANGED TO
EITHER 30, 60 OR 120 MINUTES.
DEFROST -
DEFROST WILL ONLY BE PERFORMED AT OUTDOOR TEMERATURES LESS THAN 50°F. DEFROST WILL INITIATE WHEN
TIME SELECTED HAS ELAPSED AND THE COIL TEMPERATURE IS LESS THAN 30°F.(±2°) AND WILL TERMINATE AT
80°F. (± 5°). UPON DEFROST TERMINATION THE OUTDOOR FAN WILL DELAY 20 SECONDS BEFORE STARTING.
FIELD INITIATED FORCED DEFROST -
(SHOWN AS FORCED DEFROST ON BOARD) BY PLACING A JUMPER ACROSS THE FORCED
DEFROST TERMINALS FOR 5 SECONDS, OR LONGER, AND THEN REMOVING THE JUMPER, THE UNIT WILL INITIATE A
DEFROST CYCLE REGARDLESS OF COIL TEMPERATURE. THE DEFROST CYCLE WILL TERMINATE AT 80°F (± 5°) .
IF COIL TEMPERATURE IS ABOVE 30 °F OR OUTDOOR AMBIENT TEMPERATURE IS ABOVE 50 °F, DEFROST MODE WILL
TERMINATE AFTER 30 SECONDS OF ACTIVE MODE.
12345
12
1
2
4
5
1
C
O
W
Y
2
Y
1
R
1
RVSEXVHP/AC CC
C
12345
PL1
PL1
PL4
12
PL2
1
2
3
1
2
1
2
4
5
FORCED
DEFROST
BLU
BRN
R
S
C
1
2
YEL
5
BRN
BLU
START
CAP
NOTE #10
START
RELAY
1
2
5
START
CAP
R
S
C
OFM
BLU
GRN/YEL
23
23
RED
BLK
BLK
VPS
GND
2
1
3
2
1
HPS
LPS
PWM 1
PWM 2
PWM 1
PWM 2
23
23
CL
208 / 230 - 1 - 60
POWER SUPPLY
RED
YEL
BLK
BLU
BRN
PL5
YEL
BLU
PL3
PL2
TIME (MIN)
DEFROST
VH
L 2
ODF
CCH
VC
RED
YEL
BLK
BLU
BRN
PL5
PL4
PL3
YEL
BLU
BRN
YEL
FACTORY POWER WIRING
FIELD POWER WIRING
FIELD CONTROL WIRING
FACTORY CONTROL WIRING
COMPONENT CONNECTION
FIELD SPLICE
JUNCTION
CONTACTOR LOW CAPACITY (24 V COIL)
CRANKCASE HEATER
CONTACTOR HIGH CAPACITY (24 V COIL)
CAPACITOR
DUAL CAPACITY CONTROL
SYSTEM COMMUNICATION
COMPRESSOR
HIGH PRESSURE SWITCH
LOW PRESSURE SWITCH
THERMISTOR (OUTDOOR AIR)
THERMISTOR COIL
OUTDOOR FAN MOTOR
REVERSING VALVE SOLENOID
SYSTEM FUNCTION LIGHT
VAPOR PRESSURE SWITCH
COMM
COMP
HPS
LPS
OAT
OCT
OFM
RVS
STATUS
VPS
CL
CCH
CH
CAP
DCC
OCT
OAT
LPS
HPS
OCT
OAT
LPS
HPS
2

Related product manuals