EasyManua.ls Logo

Carrier 48DK054 - Page 30

Carrier 48DK054
32 pages
To Next Page IconTo Next Page
To Next Page IconTo Next Page
To Previous Page IconTo Previous Page
To Previous Page IconTo Previous Page
Loading...
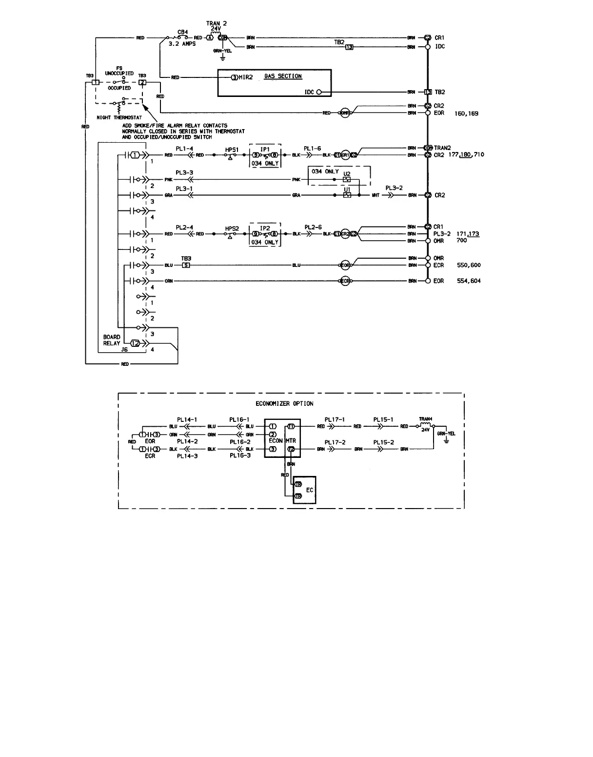
ALM Alarm
CB Circuit Breaker
COM Common
CR Control Relay
DMS Damper Motor Switch
DPS Discharge Pressure Switch
DU Dummy Terminal
EAT Entering-Air Temperature
EC Enthalpy Control
ECON Economizer
ECR Economizer Control Relay
EOR Economizer Outdoor-Air Relay
FS Fan Switch
HC Heater Contactor
HIR Heat Interlock Relay
IDC Induced Draft Contactor
IFC Indoor (Evaporator) Fan Contactor
IGVM Inlet Guide Vane Motor
IP Internal Protector
J—Pin Terminal Connector
LAT Leaving-Air Temperature
LPS Low-Pressure Switch
LS Limit Switch
MTR Motor
NC Normally Closed
NO Normally Open
OFC Outdoor (Condenser) Fan Contactor
OMR Outdoor (Condenser) Fan Motor Relay
PEC Power Exhaust Contactor
PEDM Power Exhaust Damper Motor
PEDMS Power Exhaust Damper Motor Switch
PL Plug
POT Potentiometer
RES Resistor
SCT Safety Circuit
TB Terminal Block
TRAN Transformer
U—Unloader
LEGEND
Fig. 36 Typical Control Wiring; 034,044 Units Shown
30

Table of Contents

Related product manuals